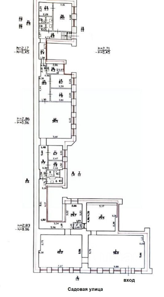
Характеристики
- Этажей всего 3
- Этаж 1
- Ближайшее метро Спасская
- Назначение ресторан
Похожие предложения
Ипотечный калькулятор
График средних цен по аренде коммерческой недвижимости в Адмиралтейском районе
| Тип недвижимости | Средн. цена м2 | Изменение с 21.01.2025 | Разброс цен | Дата |
|---|---|---|---|---|
| 685 руб. | + 685 руб. | 76 896 ... 200 000 руб. за объект | 15.04.25 | |
| Торговые помещения | 2 931 руб. | + 75 руб. | 59 500 ... 4 350 000 руб. за объект | 14.01.26 |
| 2 822 руб. | - 34 руб. | 28 000 ... 4 350 000 руб. за объект | 23.12.25 | |
| 2 679 руб. | - 177 руб. | 28 000 ... 4 350 000 руб. за объект | 09.12.25 |
Инфраструктура района
- Начальная школа-детский сад №624
- Начальная школа №300
- Средняя общеобразовательная школа №374
- Средняя общеобразовательная школа №564
- Больница
- Клиника военно-морской госпитальной терапии
- Новодевичий сад
- Смоленский сад
Материалы по теме
Запишись на онлайн просмотр объекта







