Характеристики
- Этаж 3
- Этажей всего 3
- Ближайшее метро Октябрьская
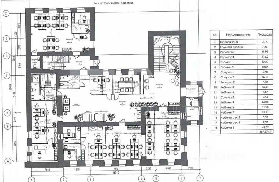
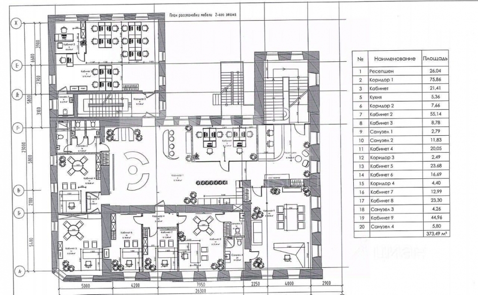
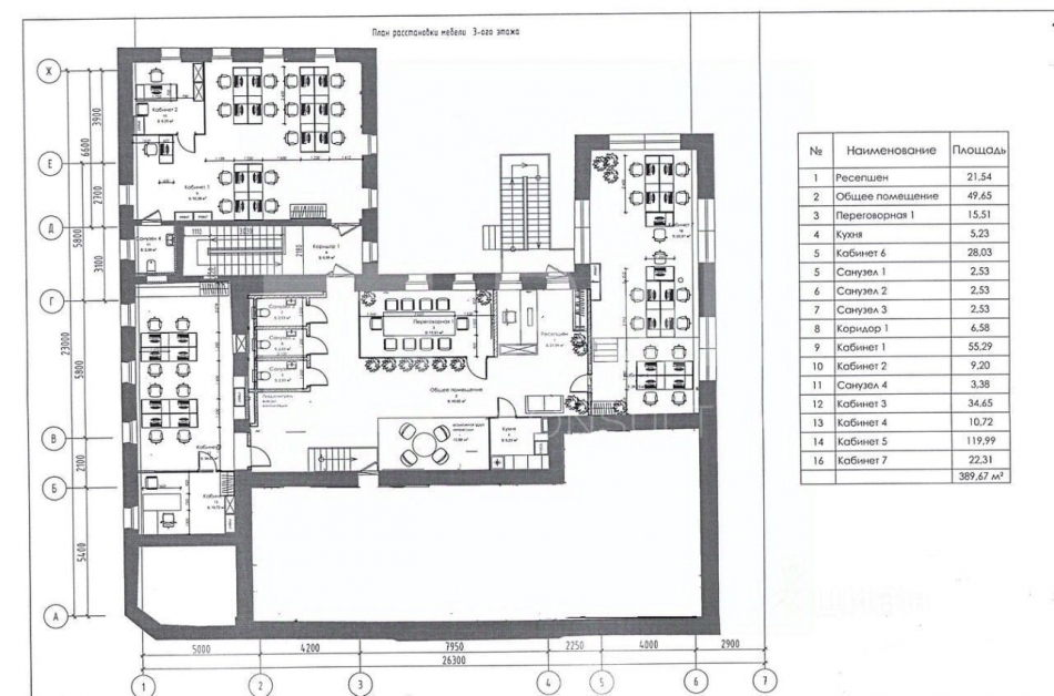
- Площадь комнат 1072.00 кв. м
Похожие предложения
Ипотечный калькулятор
График средних цен по продаже офисов в районе Якиманка
| Тип недвижимости | Средн. цена м2 | Изменение с 04.02.2025 | Разброс цен | Дата |
|---|---|---|---|---|
| Офисы | 769 265 руб. | + 233 364 руб. | 30 616 300 ... 515 000 000 руб. за объект | 11.11.25 |
| 797 351 руб. | + 261 450 руб. | 30 616 300 ... 514 345 000 руб. за объект | 28.10.25 | |
| 735 555 руб. | + 199 655 руб. | 18 253 000 ... 514 345 000 руб. за объект | 14.10.25 | |
| 734 747 руб. | + 198 847 руб. | 18 253 000 ... 514 345 000 руб. за объект | 30.09.25 | |
| 708 878 руб. | + 172 978 руб. | 18 253 000 ... 662 726 000 руб. за объект | 16.09.25 | |
| 636 751 руб. | + 100 851 руб. | 18 253 000 ... 662 726 000 руб. за объект | 02.09.25 |
Инфраструктура района
- Радуга
- Средняя общеобразовательная школа №171
- Мир искусств
- Гимназия №1257
- Городская клиническая больница №55
- Городская клиническая больница №55
- Нескучный сад
- Парк культуры им. Горького
Материалы по теме
Запишись на онлайн просмотр объекта





