Мы используем "cookies". Продолжая просмотр, Вы принимаете Пользовательское соглашение и Политику обработки персональных данных.

151 961 объект недвижимости Санкт-Петербурга

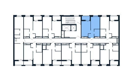
Продажа - 1-комн квартира, 32 кв. м. Аннинское городское поселение, Центральная улица д. 30 к1

5 648 890 Р

176 528 Р за м2 (в у.е.)

69 434 $ | 59 970 €
курсы валют
Бесплатно оцени свою квартиру
  • 32.00 м2

    Общая

  • 14.00 м2

    Кухня

  • 6 из 12

    Этаж

Ленинградская область, Юго-Запад, Ломоносовский, Аннинское городское поселение, Центральная улица, д. 30 к1

на карте
Прямая продажа от застройщика! Готовая Евро-двушка 32 кв.м с кухней 13.55 кв.м с предчистовой отделкой на 6 этаже в сданном ЖК «Полис Новоселье».
Скидка до, семейная ипотека от 4,5% без удорожания квартиры на весь срок кредита, рассрочка до 6 месяцев! Ипотека всем 8% на 7 лет!

«Полис Новоселье» 12-этажный квартал в пригороде Санкт-Петербурга. Он расположен в 15-ти минутах езды от метро «Ветеранов», по соседству от Стрельны и Петергофа.
Это место для жизни за последнее время стало популярным и любимым, особенно у ценителей тихой
... развернуть
Собственник
Показать телефон

Эта квартира на вторичке
в ипотеку

от 24 927 ₽ в месяц

35 предложений от 17 банков

Рассчитать и получить
одобрение онлайн

Информация по объекту недвижимости, собственниках, обременениях и аресте, выписка ЕГРН.
Перед заказом уточните у продавца по телефону точный адрес до квартиры или кадастровый номер.

Характеристики

  • Количество комнат 1
  • Этаж 6
  • Этажей всего 12
  • Ближайшее метро Проспект Ветеранов
  • Площадь кухни 14.00 кв. м

Похожие предложения

Продать Квартиры вторичка Новоселье городской поселок, улица Большая Балтийская, 10к1

6 200 000 Р

Новоселье городской поселок улица Большая Балтийская 10к1

Продать Квартиры вторичка Новоселье городской поселок, улица Большая Балтийская, 10к1

6 550 000 Р

Новоселье городской поселок улица Большая Балтийская 10к1

Продать Квартиры вторичка Новоселье городской поселок, улица Большая Балтийская, 10к1

6 950 000 Р

Новоселье городской поселок улица Большая Балтийская 10к1

Продать Квартиры вторичка Аннинское городское поселение, Центральная улица  30 к1

6 452 890 Р

Аннинское городское поселение Центральная улица , д. 30 к1

Продать Квартиры вторичка Аннинское городское поселение, Центральная улица  30 к1

6 852 890 Р

Аннинское городское поселение Центральная улица , д. 30 к1

Продать Квартиры вторичка Аннинское городское поселение, Центральная улица  30 к1

6 691 890 Р

Аннинское городское поселение Центральная улица , д. 30 к1

Продать Квартиры вторичка Аннинское городское поселение, Центральная улица  30 к1

6 542 890 Р

Аннинское городское поселение Центральная улица , д. 30 к1

Продать Квартиры вторичка Аннинское городское поселение, Центральная улица  30 к1

6 568 890 Р

Аннинское городское поселение Центральная улица , д. 30 к1

Продать Квартиры вторичка Аннинское городское поселение, Центральная улица  30 к1

5 625 890 Р

Аннинское городское поселение Центральная улица , д. 30 к1

Продать Квартиры вторичка пос. Новогорелово, бульвар Десантника Вадима Чугунова, 8к3

5 200 000 Р

пос Новогорелово бульвар Десантника Вадима Чугунова 8к3

Продать Квартиры вторичка пос. Жилгородок, шоссе Санинское, 1

6 300 000 Р

пос Жилгородок шоссе Санинское 1

Продать Квартиры вторичка пос. Новогорелово, бульвар Десантника Вадима Чугунова, 1к2

6 900 000 Р

пос Новогорелово бульвар Десантника Вадима Чугунова 1к2

Продать Квартиры вторичка д. Яльгелево, 21

4 300 000 Р

д Яльгелево 21

Продать Квартиры вторичка д. Малое Карлино, 25

5 460 000 Р

д Малое Карлино 25

Продать Квартиры вторичка д. Виллози, 14

4 450 000 Р

д Виллози 14

Продать Квартиры вторичка пос. Жилгородок, шоссе Санинское, 5

4 390 000 Р

пос Жилгородок шоссе Санинское 5

Продать Квартиры вторичка Новоселье городской поселок, улица Стрельнинская, 6

5 900 000 Р

Новоселье городской поселок улица Стрельнинская 6

Продать Квартиры вторичка Новоселье городской поселок, улица Стрельнинская, 6

6 300 000 Р

Новоселье городской поселок улица Стрельнинская 6

Продать Квартиры вторичка Сосновый Бор, проспект Героев, 22

7 190 000 Р

Сосновый Бор проспект Героев 22

Продать Квартиры вторичка Сосновый Бор, Комсомольская улица, 21

6 300 000 Р

Сосновый Бор Комсомольская улица 21

Ипотечный калькулятор

Стоимость недвижимости

Первоначальный взнос

Ставка

Срок

График средних цен по продаже однокомнатных квартир в Ломоносовском районе

Тип недвижимости Средн. цена м2 Изменение с 21.11.2024 Разброс цен Дата
Квартиры в новостройке 182 705 руб. + 23 082 руб. 3 720 210 ... 8 957 000 руб. за объект 28.10.25
180 998 руб. + 21 375 руб. 3 740 000 ... 8 890 180 руб. за объект 14.10.25
178 032 руб. + 18 409 руб. 3 595 230 ... 8 780 130 руб. за объект 30.09.25
Квартиры вторичка 146 532 руб. + 8 257 руб. 2 550 000 ... 7 900 000 руб. за объект 28.10.25
145 357 руб. + 7 082 руб. 2 550 000 ... 7 890 000 руб. за объект 14.10.25
145 963 руб. + 7 689 руб. 2 450 000 ... 7 800 000 руб. за объект 30.09.25

Инфраструктура района

Детские сады

  • Новосельский детский сад №18
  • Детский сад №6

Парки

  • Шунгеровский лесопарк

Запишись на онлайн просмотр объекта

Указать критерии поиска