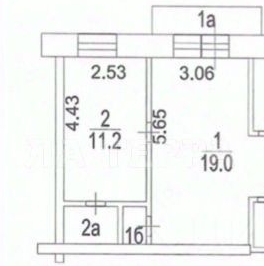
Характеристики
- Количество комнат 2
- Тип дома кирпичный
- Этаж 5
- Этажей всего 8
- Ближайшее метро МЦК Лужники
- Студия нет
- Апартаменты нет
- Наличие балкона да
- Санузел совмещенный с/у
- Площадь жилая 30.30 кв. м
- Площадь кухни 5.40 кв. м
- Отделка под ключ (чистовая)
- Ипотека да
Похожие предложения
Ипотечный калькулятор
График средних цен по продаже двухкомнатных квартир в Хамовниках
| Тип недвижимости | Средн. цена м2 | Изменение с 21.11.2024 | Разброс цен | Дата |
|---|---|---|---|---|
| Квартиры в новостройке | 2 100 539 руб. | - 353 842 руб. | 65 300 000 ... 452 070 000 руб. за объект | 11.11.25 |
| 2 143 307 руб. | - 311 074 руб. | 68 900 000 ... 461 010 000 руб. за объект | 28.10.25 | |
| 2 255 995 руб. | - 198 387 руб. | 71 659 000 ... 461 010 000 руб. за объект | 14.10.25 | |
| Квартиры вторичка | 1 071 882 руб. | + 101 159 руб. | 23 900 000 ... 280 000 000 руб. за объект | 11.11.25 |
| 1 028 559 руб. | + 57 835 руб. | 22 990 000 ... 280 000 000 руб. за объект | 28.10.25 | |
| 1 029 975 руб. | + 59 252 руб. | 23 600 000 ... 280 000 000 руб. за объект | 14.10.25 |
Инфраструктура района
- Радуга
- Средняя общеобразовательная школа №171
- Мир искусств
- Утро
- Объединенная больница с поликлиникой при Управлении делами Президента РФ
- Объединенная больница с поликлиникой при Управлении делами Президента РФ
- Нескучный сад
- Усадьба Трубецких
Материалы по теме
Запишись на онлайн просмотр объекта









