Характеристики
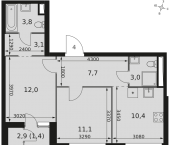
- Количество комнат для продажи/аренды 3
- Количество комнат всего 3
- Тип дома монолитный
- Этаж 10
- Этажей всего 24
- Состояние объекта отличное
- Ближайшее метро Тушинская
- До метро 20 мин
- До метро, транспортом пешком
- Апартаменты да
- Наличие лифта пассажирский лифт
- Высота потолков 3.1 м
- квартал 1
- год 2022
- Наличие парковки да
- Закрытая территория да
- Шоссе (направление) Волоколамское шоссе
- Расстояние по шоссе до МКАД/КАД 2 км
- Ипотека да
Ипотечный калькулятор
График средних цен по продаже трехкомнатных квартир в Покровском-Стрешнево
| Тип недвижимости | Средн. цена м2 | Изменение с 04.03.2025 | Разброс цен | Дата |
|---|---|---|---|---|
| Квартиры в новостройке | 523 570 руб. | + 91 498 руб. | 27 736 300 ... 102 351 000 руб. за объект | 24.02.26 |
| 465 568 руб. | + 33 497 руб. | 34 725 500 ... 40 784 300 руб. за объект | 10.02.26 | |
| 541 978 руб. | + 109 907 руб. | 27 974 000 ... 102 351 000 руб. за объект | 29.01.26 | |
| Квартиры вторичка | 462 482 руб. | + 64 154 руб. | 17 000 000 ... 100 000 000 руб. за объект | 24.02.26 |
| 461 929 руб. | + 63 602 руб. | 21 408 900 ... 59 900 000 руб. за объект | 10.02.26 | |
| 464 139 руб. | + 65 811 руб. | 17 200 000 ... 100 000 000 руб. за объект | 29.01.26 |
Инфраструктура района
- Гимназия №1519 с дошкольным отделением
- Союз
- Гимназия №1519 с дошкольным отделением
- Гимназия №1519 с дошкольным отделением
- Тушинская городская детская больница
- Тушинская городская детская больница
- Сходненская чаша (Сходненский ковш)
Материалы по теме
Запишись на онлайн просмотр объекта










