Характеристики
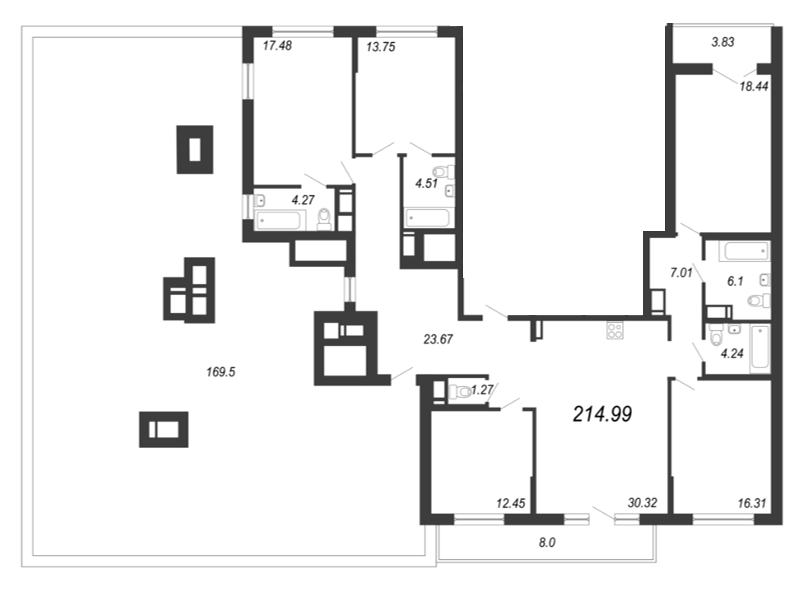
- Количество комнат для продажи/аренды 5
- Количество комнат всего 5
- Этаж 14
- Этажей всего 18
- До метро 15 мин
- До метро, транспортом на автобусе
- Наличие балкона да
- Апартаменты нет
- Площадь жилая 78.43 кв. м
- Площадь комнат 18.44 кв. м
- Площадь кухни 30.32 кв. м
- Высота потолков 2.75 м
- Дом сдан да
- квартал 2
- год 2023
- Евро да
- Отделка без отделки
Похожие предложения
Ипотечный калькулятор
График средних цен по продаже многокомнатных квартир в Василеостровском районе
| Тип недвижимости | Средн. цена м2 | Изменение с 04.03.2025 | Разброс цен | Дата |
|---|---|---|---|---|
| Квартиры в новостройке | 679 492 руб. | + 260 803 руб. | 30 262 500 ... 190 111 000 руб. за объект | 24.02.26 |
| 659 298 руб. | + 240 609 руб. | 29 463 000 ... 190 111 000 руб. за объект | 29.01.26 | |
| 639 104 руб. | + 220 415 руб. | 29 463 000 ... 190 111 000 руб. за объект | 14.01.26 | |
| Квартиры вторичка | 306 840 руб. | + 68 280 руб. | 12 750 000 ... 140 000 000 руб. за объект | 24.02.26 |
| 357 844 руб. | + 119 285 руб. | 15 500 000 ... 165 000 000 руб. за объект | 10.02.26 | |
| 301 066 руб. | + 62 507 руб. | 3 500 000 ... 131 118 000 руб. за объект | 29.01.26 |
Инфраструктура района
- Детский сад №42
- Детский сад №42
- Средняя общеобразовательная школа №4 им. Жака-Ива Кусто с углубленным изучением французского языка
- Специальная коррекционная общеобразовательная школа №4 VIII вида
- Городская поликлиника №4
- Городская поликлиника №3
- Опочининский сад
- Анфисин сад
Материалы по теме
- Линейный парк, развязки и социальная инфраструктура: в Петербурге продолжают развитие намывных территорий
- Спорные территории: в Петербурге появился новый проект застройки жильем «Ленэкспо» и Шкиперского протока
- Намыв в Петербурге остался без турецкого застройщика: социальная инфраструктура победила торговый центр
Запишись на онлайн просмотр объекта








