Характеристики
- Этажей всего 17
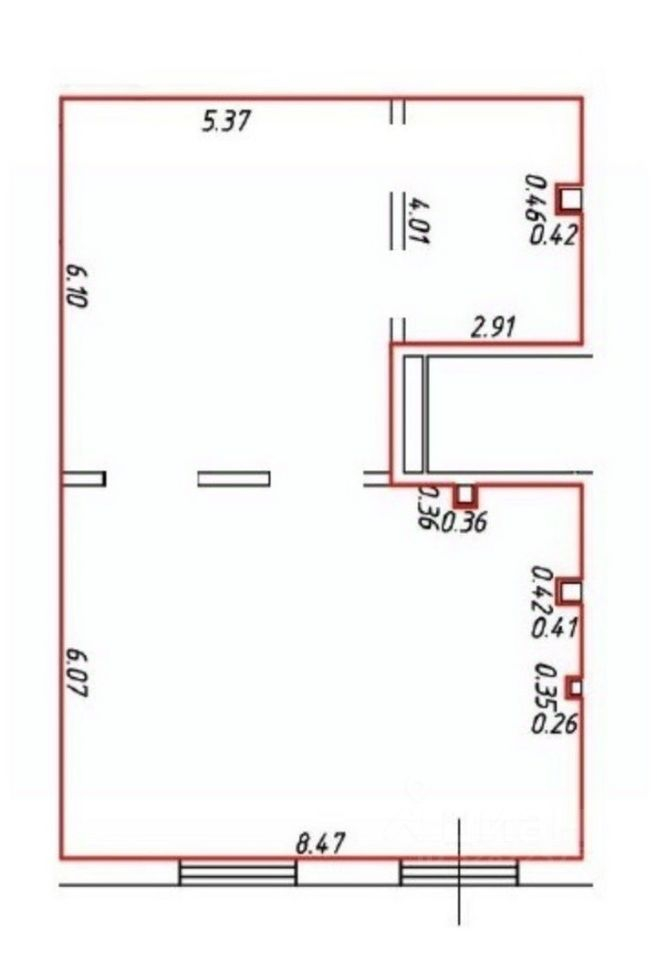
- Этаж 1
- Ближайшее метро Потапово
Похожие предложения
Ипотечный калькулятор
Инфраструктура района
- Гимназия №1786
- Зазеркалье
- Городская поликлиника №121
- Детская поликлиника №149
Материалы по теме
Запишись на онлайн просмотр объекта







