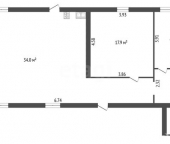
Характеристики
- Количество комнат 3
- Тип дома кирпичный
- Этаж 1
- Этажей всего 4
- Ближайшее метро Садовая
- Студия нет
- Апартаменты нет
- Санузел раздельный с/у
- Площадь жилая 65.30 кв. м
- Площадь кухни 8.80 кв. м
- Отделка под ключ (чистовая)
- Ипотека да
Похожие предложения
Ипотечный калькулятор
График средних цен по продаже трехкомнатных квартир в Адмиралтейском районе
| Тип недвижимости | Средн. цена м2 | Изменение с 15.04.2025 | Разброс цен | Дата |
|---|---|---|---|---|
| Квартиры в новостройке | 547 334 руб. | + 163 834 руб. | 29 142 800 ... 109 588 000 руб. за объект | 24.03.26 |
| 556 556 руб. | + 173 057 руб. | 28 845 100 ... 195 608 000 руб. за объект | 10.03.26 | |
| 535 018 руб. | + 151 519 руб. | 27 177 000 ... 109 588 000 руб. за объект | 24.02.26 | |
| Квартиры вторичка | 304 345 руб. | + 61 150 руб. | 10 700 000 ... 96 000 000 руб. за объект | 24.03.26 |
| 304 464 руб. | + 61 268 руб. | 10 500 000 ... 96 000 000 руб. за объект | 10.03.26 | |
| 300 836 руб. | + 57 640 руб. | 10 500 000 ... 88 000 000 руб. за объект | 24.02.26 |
Инфраструктура района
- Начальная общеобразовательная школа №615
- Начальная школа-детский сад №624
- Специальная коррекционная школа-интернат №2 для обучающихся
- Центр образования №162
- Городская больница №14
- Больница
- Детский парк имени 9 января
- Московский сад
Материалы по теме
Запишись на онлайн просмотр объекта









