Характеристики
- Количество комнат 3
- Тип дома кирпичный
- Этаж 8
- Этажей всего 9
- Студия нет
- Апартаменты нет
- Наличие балкона да
- Санузел 2 санузла с/у
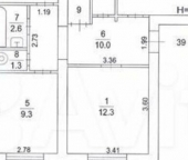
- Площадь жилая 70.00 кв. м
- Площадь кухни 15.00 кв. м
- Отделка под ключ (чистовая)
- Ипотека да
Похожие предложения
Ипотечный калькулятор
График средних цен по продаже трехкомнатных квартир в Городском округе Кашира
| Тип недвижимости | Средн. цена м2 | Изменение с 21.01.2025 | Разброс цен | Дата |
|---|---|---|---|---|
| Квартиры вторичка | 88 049 руб. | + 6 863 руб. | 3 100 000 ... 11 500 000 руб. за объект | 14.01.26 |
| 85 427 руб. | + 4 241 руб. | 3 130 000 ... 11 500 000 руб. за объект | 23.12.25 | |
| 85 624 руб. | + 4 438 руб. | 3 200 000 ... 8 500 000 руб. за объект | 09.12.25 | |
| 84 918 руб. | + 3 732 руб. | 3 200 000 ... 9 000 000 руб. за объект | 25.11.25 | |
| 85 833 руб. | + 4 647 руб. | 3 200 000 ... 9 000 000 руб. за объект | 11.11.25 | |
| 86 474 руб. | + 5 288 руб. | 3 200 000 ... 9 000 000 руб. за объект | 28.10.25 |
Материалы по теме
Запишись на онлайн просмотр объекта









