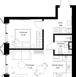
Характеристики
- Количество комнат для продажи/аренды 1
- Количество комнат всего 1
- Этаж 3
- Этажей всего 59
- До метро 23 мин
- До метро, транспортом пешком
- Апартаменты нет
- Площадь жилая 10.70 кв. м
- Площадь комнат 10.70 кв. м
- Площадь кухни 18.60 кв. м
- Площадь санузла 3.30 кв. м
- Высота потолков 2.85 м
- квартал 3
- год 2028
- Евро да
- Отделка без отделки
Похожие предложения
Ипотечный калькулятор
График средних цен по продаже однокомнатных квартир в Можайском районе
| Тип недвижимости | Средн. цена м2 | Изменение с 26.12.2024 | Разброс цен | Дата |
|---|---|---|---|---|
| Квартиры вторичка | 403 162 руб. | + 71 501 руб. | 8 500 000 ... 27 000 000 руб. за объект | 09.12.25 |
| 388 813 руб. | + 57 151 руб. | 8 600 000 ... 26 000 000 руб. за объект | 25.11.25 | |
| 377 341 руб. | + 45 679 руб. | 8 500 000 ... 26 000 000 руб. за объект | 11.11.25 | |
| 379 811 руб. | + 48 150 руб. | 7 700 000 ... 28 000 000 руб. за объект | 28.10.25 | |
| 389 634 руб. | + 57 973 руб. | 8 700 000 ... 28 170 000 руб. за объект | 14.10.25 | |
| 390 249 руб. | + 58 587 руб. | 8 700 000 ... 28 170 000 руб. за объект | 30.09.25 |
Инфраструктура района
- Ломоносовская негосударственная общеобразовательная школа
- Классический пансион МГУ им. М.В. Ломоносова
- Гимназия №1588
- Fine English Club
- Детская психоневрологическая больница №18
- Городская клиническая больница №71
Материалы по теме
Запишись на онлайн просмотр объекта







