Мы используем "cookies". Продолжая просмотр, Вы принимаете Пользовательское соглашение и Политику обработки персональных данных.

150 751 объект недвижимости Санкт-Петербурга

Продажа - 2-комн квартира, 56 кв. м. улица Маршала Казакова д. 70 к1 с1

13 000 000 Р

232 143 Р за м2 (в у.е.)

169 252 $ | 145 370 €
курсы валют
Бесплатно оцени свою квартиру
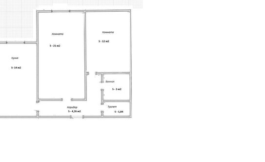
  • 56.00 м2

    Общая

  • 14.00 м2

    Кухня

  • 4 из 20

    Этаж

Санкт-Петербург, Юго-Запад, Красносельский, улица Маршала Казакова, д. 70 к1 с1

на карте
  • Автово (4.8 км)
Дорогой покупатель ! Предлагается уютная двухкомнатная квартира площадью 56.1 кв.м в современном монолитном доме 2018 года постройки. Объект отличается продуманной планировкой с раздельным санузлом и качественной отделкой: полы из ламината, в кухне и санузлах уложена керамогранитная плитка. Особого внимания заслуживает кухня, выполненная с использованием надежных материалов и техники. Ключевое преимущество панорамные окна с двойными стеклопакетами, из которых открывается вид на Финский залив. Жилой комплекс обладает развитой собственной ... развернуть
Афиногенова Полина Эдуардовна
Показать телефон

Эта квартира на вторичке
в ипотеку

от 62 353 ₽ в месяц

27 предложений от 15 банков

Рассчитать и получить
одобрение онлайн

Информация по объекту недвижимости, собственниках, обременениях и аресте, выписка ЕГРН.
Перед заказом уточните у продавца по телефону точный адрес до квартиры или кадастровый номер.

Характеристики

  • Количество комнат 2
  • Этаж 4
  • Этажей всего 20
  • Ближайшее метро Автово
  • Площадь кухни 14.00 кв. м

Похожие предложения

Продать Квартиры вторичка улица Маршала Казакова, 72к1

14 350 000 Р

улица Маршала Казакова 72к1

Продать Квартиры вторичка Ленинский проспект, 55к1

15 500 000 Р

Ленинский проспект 55к1

Продать Квартиры вторичка Ленинский проспект, 66к2

15 400 000 Р

Ленинский проспект 66к2

Продать Квартиры вторичка улица Маршала Казакова, 72к1

15 950 000 Р

улица Маршала Казакова 72к1

Продать Квартиры вторичка Ленинский проспект, 55к1

12 300 000 Р

Ленинский проспект 55к1

Продать Квартиры вторичка Ленинский проспект, 68

12 257 000 Р

Ленинский проспект 68

Продать Квартиры вторичка улица Маршала Казакова, 70к1

11 700 000 Р

улица Маршала Казакова 70к1

Продать Квартиры вторичка Ленинский проспект, 68

16 200 000 Р

Ленинский проспект 68

Продать Квартиры вторичка Ленинский проспект, 68

11 500 000 Р

Ленинский проспект 68

Продать Квартиры вторичка Ленинский проспект, 68

15 400 000 Р

Ленинский проспект 68

Продать Квартиры вторичка Ленинский проспект, 68

16 500 000 Р

Ленинский проспект 68

Продать Квартиры вторичка Ленинский проспект, 68

11 200 000 Р

Ленинский проспект 68

Продать Квартиры вторичка улица Маршала Казакова, 70к1

13 000 000 Р

улица Маршала Казакова 70к1

Продать Квартиры вторичка Ленинский проспект, 68

16 000 000 Р

Ленинский проспект 68

Продать Квартиры вторичка улица Маршала Казакова, 72к1

14 499 000 Р

улица Маршала Казакова 72к1

Продать Квартиры вторичка улица Маршала Казакова  70 к1 с1

14 000 000 Р

улица Маршала Казакова , д. 70 к1 с1

Продать Квартиры вторичка Ленинский пр-кт  68 с1

10 990 000 Р

Ленинский пр кт , д. 68 с1

Продать Квартиры вторичка Ленинский пр-кт  55 к1

12 300 000 Р

Ленинский пр кт , д. 55 к1

Продать Квартиры вторичка Ленинский пр-кт  68 с1

12 399 000 Р

Ленинский пр кт , д. 68 с1

Продать Квартиры вторичка улица Маршала Казакова  70 к1 с1

11 200 000 Р

улица Маршала Казакова , д. 70 к1 с1

Ипотечный калькулятор

Стоимость недвижимости

Первоначальный взнос

Ставка

Срок

График средних цен по продаже двухкомнатных квартир в Красносельском районе

Тип недвижимости Средн. цена м2 Изменение с 26.12.2024 Разброс цен Дата
Квартиры в новостройке 296 508 руб. + 53 796 руб. 14 636 700 ... 20 028 200 руб. за объект 25.11.25
291 902 руб. + 49 190 руб. 13 724 100 ... 19 679 000 руб. за объект 11.11.25
286 737 руб. + 44 025 руб. 13 724 100 ... 19 706 000 руб. за объект 28.10.25
Квартиры вторичка 202 206 руб. + 26 292 руб. 4 900 000 ... 27 000 000 руб. за объект 25.11.25
199 527 руб. + 23 613 руб. 4 850 000 ... 24 500 000 руб. за объект 11.11.25
198 839 руб. + 22 924 руб. 4 900 000 ... 22 500 000 руб. за объект 28.10.25

Инфраструктура района

Детские сады

  • Детский сад №31
  • Детский сад №43

Школы

  • Молодежный дом-СПб
  • Молодежный дом-СПб

Медицинские учреждения

  • Детская городская больница №1
  • Городская больница №15

Парки

  • Парк Дачи Эсворт(«Литания»)
  • Парк Дачи Чидсон

Запишись на онлайн просмотр объекта

Указать критерии поиска