Характеристики
- Этаж 8
- Этажей всего 16
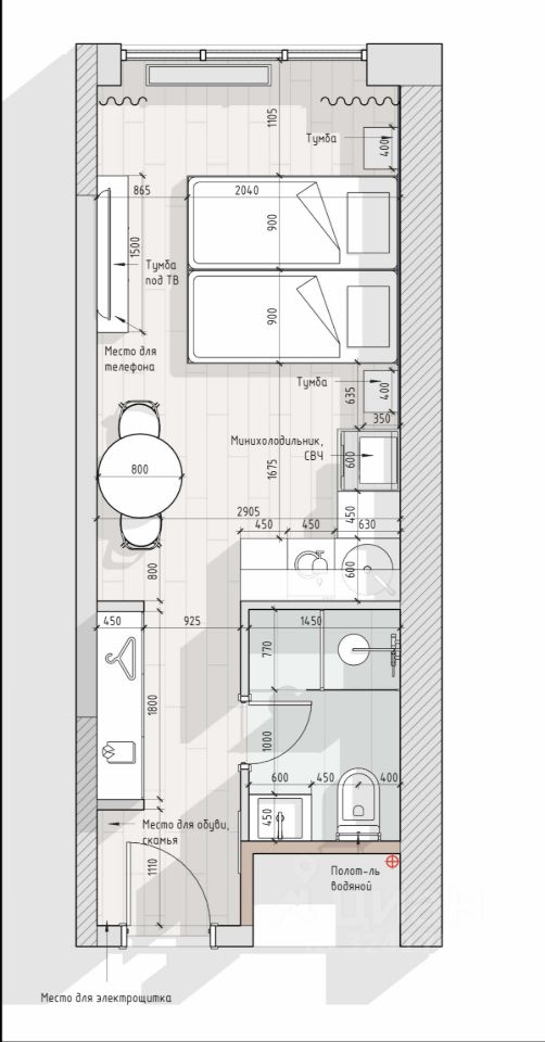
- Студия да
- Апартаменты да
- Наличие балкона да
- Санузел совмещенный с/у
- Площадь жилая 20.00 кв. м
- Отделка под ключ (чистовая)
- Ипотека да
Похожие предложения
Ипотечный калькулятор
График средних цен по продаже студий в Одинцовском городском округе
| Тип недвижимости | Средн. цена м2 | Изменение с 21.01.2025 | Разброс цен | Дата |
|---|---|---|---|---|
| Квартиры в новостройке | 299 730 руб. | + 22 696 руб. | 6 575 400 ... 13 707 100 руб. за объект | 14.01.26 |
| 278 876 руб. | + 1 843 руб. | 6 349 000 ... 13 734 700 руб. за объект | 23.12.25 | |
| 283 242 руб. | + 6 209 руб. | 6 018 080 ... 14 002 100 руб. за объект | 09.12.25 | |
| Квартиры вторичка | 275 361 руб. | + 24 386 руб. | 2 800 000 ... 12 400 000 руб. за объект | 14.01.26 |
| 269 273 руб. | + 18 298 руб. | 3 500 000 ... 12 300 000 руб. за объект | 23.12.25 | |
| 268 467 руб. | + 17 492 руб. | 4 200 000 ... 11 500 000 руб. за объект | 09.12.25 |
Инфраструктура района
- Гимназия
- Немчиновская амбулатория
- Одинцовский противотуберкулезный диспансер
Материалы по теме
Запишись на онлайн просмотр объекта









