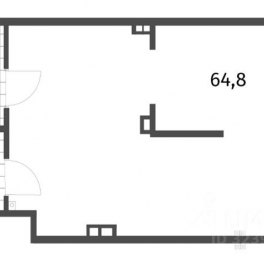
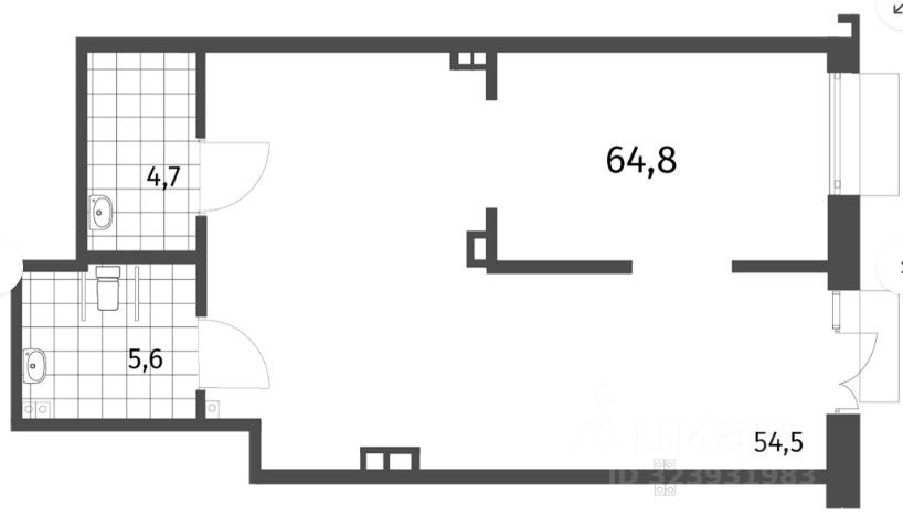
Характеристики
- Этажей всего 12
- Этаж 1
- Ближайшее метро Василеостровская
- Назначение Коммерция
Похожие предложения
Ипотечный калькулятор
График средних цен по продаже коммерческой недвижимости в Василеостровском районе
| Тип недвижимости | Средн. цена м2 | Изменение с 16.01.2025 | Разброс цен | Дата |
|---|---|---|---|---|
| Торговые помещения | 292 005 руб. | + 31 343 руб. | 7 400 000 ... 320 000 000 руб. за объект | 25.11.25 |
| 311 528 руб. | + 50 866 руб. | 7 400 000 ... 320 000 000 руб. за объект | 11.11.25 | |
| 336 176 руб. | + 75 514 руб. | 7 400 000 ... 320 000 000 руб. за объект | 28.10.25 | |
| 283 122 руб. | + 22 461 руб. | 7 400 000 ... 320 000 000 руб. за объект | 14.10.25 | |
| 283 122 руб. | + 22 461 руб. | 7 400 000 ... 320 000 000 руб. за объект | 30.09.25 | |
| 283 122 руб. | + 22 461 руб. | 7 400 000 ... 320 000 000 руб. за объект | 16.09.25 |
Инфраструктура района
- Начальная школа №36
- Человечек
- Школа-интернат №576 с углубленным изучением физической культуры
- Средняя общеобразовательная школа №4 им. Жака-Ива Кусто с углубленным изучением французского языка
- Городская Покровская больница
- Городская поликлиника №23
- Опочининский сад
- Шкиперский сад
Материалы по теме
- Линейный парк, развязки и социальная инфраструктура: в Петербурге продолжают развитие намывных территорий
- Спорные территории: в Петербурге появился новый проект застройки жильем «Ленэкспо» и Шкиперского протока
- Намыв в Петербурге остался без турецкого застройщика: социальная инфраструктура победила торговый центр
Запишись на онлайн просмотр объекта





