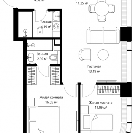
Характеристики
- Количество комнат для продажи/аренды 2
- Количество комнат всего 2
- Этаж 5
- Этажей всего 38
- До метро 24 мин
- До метро, транспортом пешком
- Апартаменты нет
- Высота потолков 2.85 м
- квартал 4
- год 2029
- Евро да
- Отделка без отделки
Похожие предложения
Ипотечный калькулятор
График средних цен по продаже двухкомнатных квартир в Можайском районе
| Тип недвижимости | Средн. цена м2 | Изменение с 21.11.2024 | Разброс цен | Дата |
|---|---|---|---|---|
| Квартиры в новостройке | 460 072 руб. | + 72 629 руб. | 16 979 800 ... 40 230 000 руб. за объект | 11.11.25 |
| 463 034 руб. | + 75 591 руб. | 17 188 600 ... 41 220 000 руб. за объект | 28.10.25 | |
| 464 489 руб. | + 77 046 руб. | 16 463 500 ... 42 471 000 руб. за объект | 14.10.25 | |
| Квартиры вторичка | 388 074 руб. | + 60 408 руб. | 10 400 000 ... 41 999 000 руб. за объект | 11.11.25 |
| 382 803 руб. | + 55 137 руб. | 10 500 000 ... 43 000 000 руб. за объект | 28.10.25 | |
| 376 264 руб. | + 48 598 руб. | 10 500 000 ... 43 000 000 руб. за объект | 14.10.25 |
Инфраструктура района
- Ломоносовская негосударственная общеобразовательная школа
- Классический пансион МГУ им. М.В. Ломоносова
- Гимназия №1588
- Fine English Club
- Детская психоневрологическая больница №18
- Городская клиническая больница №71
Материалы по теме
Запишись на онлайн просмотр объекта








