Характеристики
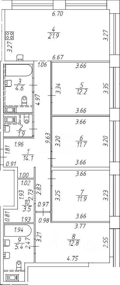
- Количество комнат 4
- Тип дома кирпично-монолитный
- Этаж 18
- Этажей всего 19
- Ближайшее метро Приморская
- Студия нет
- Апартаменты нет
- Санузел совмещенный с/у
- Площадь жилая 48.60 кв. м
- Площадь кухни 21.90 кв. м
- Отделка под ключ (чистовая)
- Вид из окон на улицу
- Ипотека да
Похожие предложения
Ипотечный калькулятор
График средних цен по продаже многокомнатных квартир в Василеостровском районе
| Тип недвижимости | Средн. цена м2 | Изменение с 21.11.2024 | Разброс цен | Дата |
|---|---|---|---|---|
| Квартиры в новостройке | 650 376 руб. | + 258 703 руб. | 28 292 000 ... 190 111 000 руб. за объект | 28.10.25 |
| 614 443 руб. | + 222 770 руб. | 28 292 000 ... 190 111 000 руб. за объект | 14.10.25 | |
| 467 381 руб. | + 75 708 руб. | 28 248 000 ... 402 658 000 руб. за объект | 30.09.25 | |
| Квартиры вторичка | 297 059 руб. | + 73 639 руб. | 3 550 000 ... 127 000 000 руб. за объект | 28.10.25 |
| 298 445 руб. | + 75 025 руб. | 3 650 000 ... 125 000 000 руб. за объект | 14.10.25 | |
| 289 591 руб. | + 66 171 руб. | 3 850 000 ... 125 000 000 руб. за объект | 30.09.25 |
Инфраструктура района
- Детский сад №19
- Детский сад №29
- Средняя общеобразовательная школа №31 с углубленным изучением английского языка
- Гимназия №642
- Городская поликлиника №4
Материалы по теме
- Glorax Development продолжит строительство квартала Golden City на Василеостровском намыве
- Линейный парк, развязки и социальная инфраструктура: в Петербурге продолжают развитие намывных территорий
- Спорные территории: в Петербурге появился новый проект застройки жильем «Ленэкспо» и Шкиперского протока
Запишись на онлайн просмотр объекта










