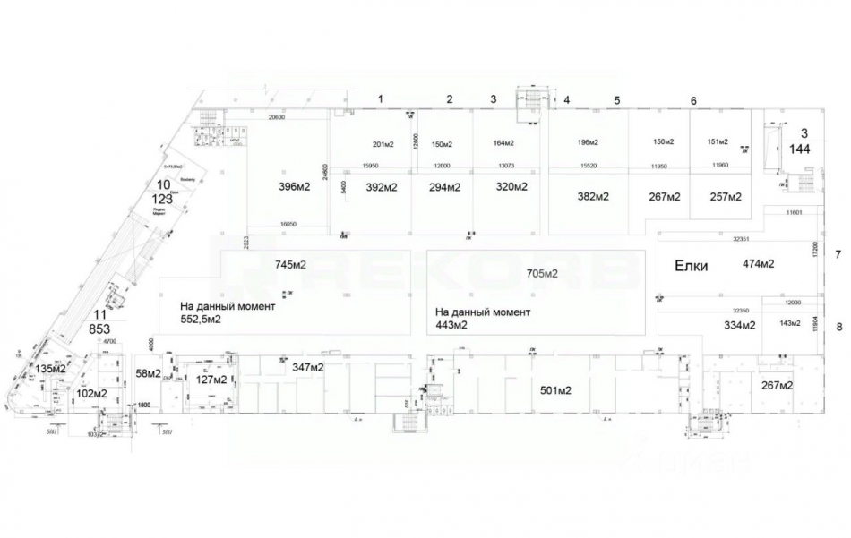
Характеристики
- Этаж 1
- Этажей всего 10
- Ближайшее метро Ладожская
- Площадь комнат 5791.00 кв. м
График средних цен по аренде офисов в Красногвардейском районе
| Тип недвижимости | Средн. цена м2 | Изменение с 21.11.2024 | Разброс цен | Дата |
|---|---|---|---|---|
| Офисы | 2 444 руб. | + 893 руб. | 16 200 ... 965 167 руб. за объект | 11.11.25 |
| 1 500 руб. | - 51 руб. | 15 750 ... 1 709 240 руб. за объект | 28.10.25 | |
| 1 459 руб. | - 93 руб. | 16 344 ... 965 167 руб. за объект | 14.10.25 | |
| 1 217 руб. | - 334 руб. | 15 000 ... 1 709 240 руб. за объект | 30.09.25 | |
| 2 488 руб. | + 937 руб. | 13 635 ... 1 709 240 руб. за объект | 16.09.25 | |
| 2 912 руб. | + 1 361 руб. | 15 254 ... 1 709 240 руб. за объект | 02.09.25 |
Инфраструктура района
- Начальная школа №689
- Детский сад №111
- Школа-интернат для слепых и слабовидящих детей №1 им. К.К. Грота
- Специальная (коррекционная) школа-интернат №6 для детей-сирот и детей
- Детская городская поликлиника №62
- Детская городская поликлиника №68
- Смоленский сад
- Парк Воинской Славы
Материалы по теме
Запишись на онлайн просмотр объекта





