Мы используем "cookies". Продолжая просмотр, Вы принимаете Пользовательское соглашение и Политику обработки персональных данных.

153 010 объектов недвижимости Санкт-Петербурга

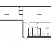
Продажа - 1-комн квартира, 40 кв. м. Кириши, ул Восточная д. 8

4 000 000 Р

100 000 Р за м2 (в у.е.)

49 209 $ | 42 468 €
курсы валют
Бесплатно оцени свою квартиру
  • 40.00 м2

    Общая

  • 12.00 м2

    Кухня

  • 4 из 6

    Этаж

Ленинградская область, Восток, Киришский, Кириши, ул Восточная, д. 8

на карте
Здравствуйте. Продается просторная 1 к. квартира! Дом 2010 г. постройки! Ул. Восточная д. 8 на 4 этаже! Лифт! Кухня 12 кв. м , комната 17 кв. м, большой совм. с/у , вместительная гардеробная! В шаговой доступности школа 6,ТЦ Плаза, множество супермаркетов! Очень теплая и светлая квартира! Любые виды оплат!
Ваша Недвижимость
Показать телефон

Эта квартира на вторичке
в ипотеку

от 17 651 ₽ в месяц

35 предложений от 17 банков

Рассчитать и получить
одобрение онлайн

Информация по объекту недвижимости, собственниках, обременениях и аресте, выписка ЕГРН.
Перед заказом уточните у продавца по телефону точный адрес до квартиры или кадастровый номер.

Характеристики

  • Количество комнат 1
  • Этаж 4
  • Этажей всего 6
  • Площадь кухни 12.00 кв. м

Похожие предложения

Продать Квартиры вторичка Кириши, улица Энергетиков, 18

4 500 000 Р

Кириши улица Энергетиков 18

Продать Квартиры вторичка Кириши, Школьный переулок, 5

2 900 000 Р

Кириши Школьный переулок 5

Продать Квартиры вторичка Кириши, проспект Героев, 31

4 100 000 Р

Кириши проспект Героев 31

Продать Квартиры вторичка Кириши, улица Энергетиков, 24

4 500 000 Р

Кириши улица Энергетиков 24

Продать Квартиры вторичка Кириши, Восточная улица, 4

3 850 000 Р

Кириши Восточная улица 4

Продать Квартиры вторичка Кириши, улица Энергетиков, 7

4 500 000 Р

Кириши улица Энергетиков 7

Продать Квартиры вторичка Кириши, улица Энергетиков, 5

3 100 000 Р

Кириши улица Энергетиков 5

Продать Квартиры вторичка Кириши, Восточная улица, 8

4 100 000 Р

Кириши Восточная улица 8

Продать Квартиры вторичка Кириши, улица Энергетиков, 3

4 990 000 Р

Кириши улица Энергетиков 3

Продать Квартиры вторичка Кириши, Восточная улица, 8

3 850 000 Р

Кириши Восточная улица 8

Продать Квартиры вторичка Кириши, Восточная улица, 4

3 750 000 Р

Кириши Восточная улица 4

Продать Квартиры вторичка Кириши, проспект Победы, 5

3 800 000 Р

Кириши проспект Победы 5

Продать Квартиры вторичка Кириши, проспект Победы, 9

3 400 000 Р

Кириши проспект Победы 9

Продать Квартиры вторичка Кириши, ул Энергетиков  9

2 900 000 Р

Кириши ул Энергетиков , д. 9

Продать Квартиры вторичка Кириши г, Победы пр-кт  9

3 400 000 Р

Кириши г Победы пр кт , д. 9

Продать Квартиры вторичка Кириши, проспект Ленина, 30

2 590 000 Р

Кириши проспект Ленина 30

Продать Квартиры вторичка Будогощь пгт, улица Советская, 85

2 690 000 Р

Будогощь пгт улица Советская 85

Продать Квартиры вторичка Кириши, улица Энергетиков, 21

2 490 000 Р

Кириши улица Энергетиков 21

Продать Квартиры вторичка Кириши, улица Строителей, 15

3 585 000 Р

Кириши улица Строителей 15

Продать Квартиры вторичка Кириши, улица Нефтехимиков, 8

3 700 000 Р

Кириши улица Нефтехимиков 8

Ипотечный калькулятор

Стоимость недвижимости

Первоначальный взнос

Ставка

Срок

График средних цен по продаже однокомнатных квартир в Киришском районе

Тип недвижимости Средн. цена м2 Изменение с 21.11.2024 Разброс цен Дата
Квартиры вторичка 74 493 руб. + 686 руб. 1 100 000 ... 4 600 000 руб. за объект 11.11.25
75 686 руб. + 1 880 руб. 1 100 000 ... 4 600 000 руб. за объект 28.10.25
74 997 руб. + 1 190 руб. 1 200 000 ... 4 500 000 руб. за объект 14.10.25
76 115 руб. + 2 309 руб. 1 200 000 ... 4 600 000 руб. за объект 30.09.25
76 400 руб. + 2 593 руб. 1 200 000 ... 4 600 000 руб. за объект 16.09.25
76 422 руб. + 2 615 руб. 1 200 000 ... 4 600 000 руб. за объект 02.09.25

Запишись на онлайн просмотр объекта

Указать критерии поиска