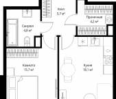
Характеристики
- Количество комнат для продажи/аренды 1
- Количество комнат всего 1
- Этаж 49
- Этажей всего 90
- До метро 4 мин
- До метро, транспортом пешком
- Студия да
- Апартаменты нет
- Высота потолков 3.79 м
- квартал 2
- год 2030
- Отделка предчистовая
Похожие предложения
Ипотечный калькулятор
График средних цен по продаже студий в Пресненском районе
| Тип недвижимости | Средн. цена м2 | Изменение с 05.12.2024 | Разброс цен | Дата |
|---|---|---|---|---|
| Квартиры вторичка | 794 413 руб. | + 116 345 руб. | 3 900 000 ... 150 000 000 руб. за объект | 25.11.25 |
| 771 172 руб. | + 93 105 руб. | 5 100 000 ... 77 500 000 руб. за объект | 11.11.25 | |
| 761 244 руб. | + 83 177 руб. | 5 100 000 ... 128 000 000 руб. за объект | 28.10.25 | |
| 750 482 руб. | + 72 414 руб. | 6 890 000 ... 54 400 000 руб. за объект | 14.10.25 | |
| 752 752 руб. | + 74 684 руб. | 4 950 000 ... 54 400 000 руб. за объект | 30.09.25 | |
| 746 331 руб. | + 68 263 руб. | 5 950 000 ... 50 000 000 руб. за объект | 16.09.25 |
Инфраструктура района
- Утро
- Гимназия №710 им. Народного Учителя СССР В.К. Жудова
- Городская клиническая больница №61
- Детская инфекционная больница №8
- Усадьба Трубецких
- Парк Победы
Материалы по теме
Запишись на онлайн просмотр объекта






