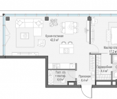
Характеристики
- Количество комнат для продажи/аренды 1
- Количество комнат всего 1
- Этаж 7
- Этажей всего 10
- До метро 8 мин
- До метро, транспортом пешком
- Апартаменты нет
- Высота потолков 3.17 м
- квартал 3
- год 2027
- Евро да
- Отделка без отделки
Похожие предложения
Ипотечный калькулятор
График средних цен по продаже однокомнатных квартир в Хамовниках
| Тип недвижимости | Средн. цена м2 | Изменение с 18.03.2025 | Разброс цен | Дата |
|---|---|---|---|---|
| Квартиры в новостройке | 2 852 018 руб. | + 472 446 руб. | 71 619 000 ... 375 725 000 руб. за объект | 10.03.26 |
| 2 850 753 руб. | + 471 181 руб. | 68 900 000 ... 353 000 000 руб. за объект | 24.02.26 | |
| 1 708 002 руб. | - 671 570 руб. | 68 900 000 ... 353 000 000 руб. за объект | 10.02.26 | |
| Квартиры вторичка | 798 493 руб. | + 40 783 руб. | 11 100 000 ... 160 000 000 руб. за объект | 10.03.26 |
| 767 937 руб. | + 10 227 руб. | 11 500 000 ... 120 000 000 руб. за объект | 24.02.26 | |
| 735 893 руб. | - 21 817 руб. | 11 100 000 ... 50 000 000 руб. за объект | 10.02.26 |
Инфраструктура района
- Радуга
- Средняя общеобразовательная школа №171
- Мир искусств
- Гимназия №1529
- Городская клиническая больница №55
- Городская клиническая больница №55
- Нескучный сад
- Усадьба Трубецких
Материалы по теме
Запишись на онлайн просмотр объекта





