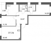
Характеристики
- Количество комнат для продажи/аренды 2
- Количество комнат всего 2
- Этаж 1
- Этажей всего 12
- Наличие балкона да
- Апартаменты нет
- Площадь жилая 29.30 кв. м
- Площадь комнат 10.40 кв. м
- Площадь кухни 28.10 кв. м
- Высота потолков 4.70 м
- квартал 4
- год 2024
- Евро да
- Отделка без отделки
Похожие предложения
Ипотечный калькулятор
График средних цен по продаже двухкомнатных квартир в Ломоносовском районе
| Тип недвижимости | Средн. цена м2 | Изменение с 04.02.2025 | Разброс цен | Дата |
|---|---|---|---|---|
| Квартиры в новостройке | 180 098 руб. | + 17 738 руб. | 7 350 000 ... 14 758 400 руб. за объект | 29.01.26 |
| 179 290 руб. | + 16 929 руб. | 7 259 080 ... 14 375 500 руб. за объект | 14.01.26 | |
| 178 884 руб. | + 16 524 руб. | 7 325 760 ... 14 370 100 руб. за объект | 23.12.25 | |
| Квартиры вторичка | 127 546 руб. | + 10 057 руб. | 2 350 000 ... 14 290 000 руб. за объект | 29.01.26 |
| 122 954 руб. | + 5 465 руб. | 2 600 000 ... 13 000 000 руб. за объект | 14.01.26 | |
| 122 178 руб. | + 4 689 руб. | 2 600 000 ... 13 104 000 руб. за объект | 23.12.25 |
Инфраструктура района
- Детский сад №16
- Новосельский детский сад №18
- Средняя общеобразовательная школа №398
- Средняя общеобразовательная школа №414
- Городская поликлиника №91
- Сад Института экспериментальной медицины
- Шунгеровский лесопарк
Материалы по теме
Запишись на онлайн просмотр объекта











