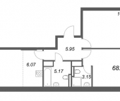
Характеристики
- Количество комнат для продажи/аренды 3
- Количество комнат всего 3
- Этаж 13
- Этажей всего 23
- До метро 5 мин
- До метро, транспортом на автобусе
- Наличие балкона да
- Апартаменты нет
- Площадь жилая 41.91 кв. м
- Площадь комнат 16.10 кв. м
- Площадь кухни 20.62 кв. м
- Высота потолков 2.82 м
- квартал 3
- год 2027
- Евро да
- Отделка предчистовая
Похожие предложения
Ипотечный калькулятор
График средних цен по продаже трехкомнатных квартир в Невском районе
| Тип недвижимости | Средн. цена м2 | Изменение с 21.11.2024 | Разброс цен | Дата |
|---|---|---|---|---|
| Квартиры в новостройке | 266 019 руб. | + 72 272 руб. | 10 620 100 ... 33 775 600 руб. за объект | 11.11.25 |
| 265 419 руб. | + 71 672 руб. | 10 620 100 ... 33 497 200 руб. за объект | 28.10.25 | |
| 267 250 руб. | + 73 503 руб. | 10 620 100 ... 33 497 200 руб. за объект | 14.10.25 | |
| Квартиры вторичка | 199 415 руб. | + 30 134 руб. | 7 450 000 ... 32 000 000 руб. за объект | 11.11.25 |
| 197 364 руб. | + 28 084 руб. | 7 500 000 ... 30 000 000 руб. за объект | 28.10.25 | |
| 193 269 руб. | + 23 988 руб. | 7 500 000 ... 29 750 000 руб. за объект | 14.10.25 |
Инфраструктура района
- Начальная школа №689
- Детский сад №55
- Школа-интернат №24 для детей-сирот и детей
- Специальная (коррекционная) школа-интернат №31 для обучающихся
- Городская больница №23
- Городская поликлиника №8
- Парк «Куракина Дача»
- Сад у Ивановского карьера
Материалы по теме
Запишись на онлайн просмотр объекта









