Характеристики
- Количество комнат для продажи/аренды 2
- Количество комнат всего 2
- Этаж 12
- Этажей всего 23
- До метро 5 мин
- До метро, транспортом на автобусе
- Наличие балкона да
- Апартаменты нет
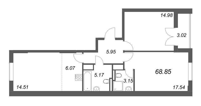
- Площадь жилая 32.49 кв. м
- Площадь комнат 17.51 кв. м
- Площадь кухни 20.58 кв. м
- Высота потолков 2.82 м
- квартал 3
- год 2027
- Евро да
- Отделка предчистовая
Похожие предложения
Ипотечный калькулятор
График средних цен по продаже двухкомнатных квартир в Невском районе
| Тип недвижимости | Средн. цена м2 | Изменение с 04.02.2025 | Разброс цен | Дата |
|---|---|---|---|---|
| Квартиры в новостройке | 296 548 руб. | + 55 763 руб. | 11 172 500 ... 24 854 300 руб. за объект | 14.01.26 |
| 293 137 руб. | + 52 352 руб. | 10 342 800 ... 24 434 000 руб. за объект | 23.12.25 | |
| 290 715 руб. | + 49 930 руб. | 10 302 500 ... 24 370 100 руб. за объект | 09.12.25 | |
| Квартиры вторичка | 219 472 руб. | + 31 184 руб. | 6 300 000 ... 23 250 000 руб. за объект | 14.01.26 |
| 214 928 руб. | + 26 641 руб. | 6 100 000 ... 22 885 000 руб. за объект | 23.12.25 | |
| 213 982 руб. | + 25 694 руб. | 6 000 000 ... 22 885 000 руб. за объект | 09.12.25 |
Инфраструктура района
- Начальная школа №689
- Детский сад №55
- Школа-интернат №24 для детей-сирот и детей
- Специальная (коррекционная) школа-интернат №31 для обучающихся
- Городская больница №23
- Городская поликлиника №8
- Парк «Куракина Дача»
- Сад у Ивановского карьера
Материалы по теме
Запишись на онлайн просмотр объекта









