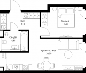
Характеристики
- Количество комнат для продажи/аренды 1
- Количество комнат всего 1
- Этаж 2
- Этажей всего 22
- До метро 24 мин
- До метро, транспортом пешком
- Студия да
- Апартаменты нет
- Площадь жилая 15.70 кв. м
- Площадь комнат 15.70 кв. м
- Площадь санузла 3.50 кв. м
- Высота потолков 2.85 м
- квартал 3
- год 2028
- Отделка предчистовая
Похожие предложения
Ипотечный калькулятор
Инфраструктура района
- Ломоносовская негосударственная общеобразовательная школа
- Классический пансион МГУ им. М.В. Ломоносова
- Гимназия №1588
- Fine English Club
- Детская психоневрологическая больница №18
- Городская клиническая больница №71
Материалы по теме
Запишись на онлайн просмотр объекта








