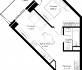
Характеристики
- Количество комнат для продажи/аренды 1
- Количество комнат всего 1
- Этаж 50
- Этажей всего 55
- До метро 8 мин
- До метро, транспортом пешком
- Студия да
- Апартаменты нет
- Площадь жилая 11.80 кв. м
- Площадь комнат 11.80 кв. м
- Площадь кухни 9.70 кв. м
- Площадь санузла 2.90 кв. м
- Высота потолков 3.00 м
- квартал 4
- год 2027
- Отделка предчистовая
Похожие предложения
Ипотечный калькулятор
Инфраструктура района
- Прогимназия
- Морозко
- Гимназия №1522
- Гимназия №1515
- Детская городская клиническая больница №9 им. Г.Н. Сперанского
- Детская городская клиническая больница №9 им. Г.Н. Сперанского
- Фили
- Фили детский парк
Материалы по теме
Запишись на онлайн просмотр объекта









