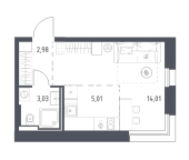
Характеристики
- Количество комнат для продажи/аренды 1
- Количество комнат всего 1
- Этаж 6
- Этажей всего 9
- Студия да
- Апартаменты нет
- Площадь жилая 15.00 кв. м
- Площадь комнат 15.00 кв. м
- Площадь кухни 5.00 кв. м
- Площадь санузла 3.90 кв. м
- Высота потолков 3.00 м
- квартал 1
- год 2025
- Отделка без отделки
Похожие предложения
Ипотечный калькулятор
График средних цен по продаже студий в Одинцовском городском округе
| Тип недвижимости | Средн. цена м2 | Изменение с 04.02.2025 | Разброс цен | Дата |
|---|---|---|---|---|
| Квартиры в новостройке | 295 896 руб. | + 8 916 руб. | 6 528 600 ... 13 734 700 руб. за объект | 29.01.26 |
| 299 730 руб. | + 12 749 руб. | 6 575 400 ... 13 707 100 руб. за объект | 14.01.26 | |
| 278 876 руб. | - 8 104 руб. | 6 349 000 ... 13 734 700 руб. за объект | 23.12.25 | |
| Квартиры вторичка | 272 787 руб. | + 20 721 руб. | 2 900 000 ... 12 300 000 руб. за объект | 29.01.26 |
| 275 361 руб. | + 23 296 руб. | 2 800 000 ... 12 400 000 руб. за объект | 14.01.26 | |
| 269 273 руб. | + 17 208 руб. | 3 500 000 ... 12 300 000 руб. за объект | 23.12.25 |
Инфраструктура района
- Атлантик
- Сократ
- Амбулатория пос. Заречье
- Детская поликлиника №51
Материалы по теме
Запишись на онлайн просмотр объекта





