Характеристики
- Количество комнат для продажи/аренды 1
- Количество комнат всего 1
- Этаж 1
- Этажей всего 7
- Апартаменты нет
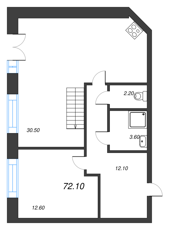
- Площадь жилая 12.60 кв. м
- Площадь комнат 12.60 кв. м
- Площадь кухни 30.50 кв. м
- Площадь санузла 3.60 кв. м
- Высота потолков 4.65 м
- Дом сдан да
- квартал 4
- год 2022
- Евро да
- Отделка без отделки
Похожие предложения
Ипотечный калькулятор
График средних цен по продаже однокомнатных квартир в Ломоносовском районе
| Тип недвижимости | Средн. цена м2 | Изменение с 21.01.2025 | Разброс цен | Дата |
|---|---|---|---|---|
| Квартиры в новостройке | 188 808 руб. | + 25 070 руб. | 3 998 890 ... 9 428 900 руб. за объект | 14.01.26 |
| 187 998 руб. | + 24 261 руб. | 3 943 380 ... 9 372 800 руб. за объект | 23.12.25 | |
| 185 475 руб. | + 21 737 руб. | 3 852 640 ... 9 233 740 руб. за объект | 09.12.25 | |
| Квартиры вторичка | 147 937 руб. | + 5 061 руб. | 2 490 000 ... 8 700 000 руб. за объект | 14.01.26 |
| 148 190 руб. | + 5 314 руб. | 2 450 000 ... 8 177 000 руб. за объект | 23.12.25 | |
| 148 003 руб. | + 5 127 руб. | 2 450 000 ... 7 800 000 руб. за объект | 09.12.25 |
Инфраструктура района
- Детский сад №16
- Новосельский детский сад №18
- Средняя общеобразовательная школа №398
- Средняя общеобразовательная школа №414
- Городская поликлиника №91
- Сад Института экспериментальной медицины
- Шунгеровский лесопарк
Материалы по теме
Запишись на онлайн просмотр объекта











