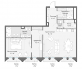
Характеристики
- Количество комнат для продажи/аренды 2
- Количество комнат всего 2
- Этаж 3
- Этажей всего 6
- До метро 12 мин
- До метро, транспортом пешком
- Апартаменты да
- Площадь жилая 41.80 кв. м
- Площадь комнат 27.30 кв. м
- Площадь кухни 7.40 кв. м
- Высота потолков 3.23 м
- квартал 4
- год 2024
- Отделка предчистовая
Похожие предложения
Ипотечный калькулятор
График средних цен по продаже двухкомнатных квартир в Хамовниках
| Тип недвижимости | Средн. цена м2 | Изменение с 01.04.2025 | Разброс цен | Дата |
|---|---|---|---|---|
| Квартиры в новостройке | 2 933 255 руб. | + 494 699 руб. | 99 000 000 ... 541 760 000 руб. за объект | 10.03.26 |
| 3 019 612 руб. | + 581 056 руб. | 107 120 000 ... 549 920 000 руб. за объект | 24.02.26 | |
| 1 526 224 руб. | - 912 333 руб. | 76 300 000 ... 168 067 000 руб. за объект | 10.02.26 | |
| Квартиры вторичка | 1 137 902 руб. | + 186 470 руб. | 24 000 000 ... 304 500 000 руб. за объект | 10.03.26 |
| 1 131 558 руб. | + 180 126 руб. | 24 900 000 ... 300 000 000 руб. за объект | 24.02.26 | |
| 1 101 366 руб. | + 149 934 руб. | 24 700 000 ... 308 000 000 руб. за объект | 10.02.26 |
Инфраструктура района
- Радуга
- Средняя общеобразовательная школа №171
- Мир искусств
- Утро
- Объединенная больница с поликлиникой при Управлении делами Президента РФ
- Объединенная больница с поликлиникой при Управлении делами Президента РФ
- Нескучный сад
- Усадьба Трубецких
Материалы по теме
Запишись на онлайн просмотр объекта






