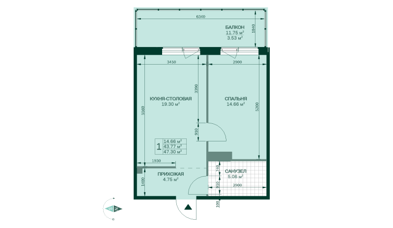
Характеристики
- Количество комнат для продажи/аренды 1
- Количество комнат всего 1
- Этаж 4
- Этажей всего 6
- Наличие балкона да
- Апартаменты нет
- Площадь жилая 14.66 кв. м
- Площадь комнат 14.66 кв. м
- Площадь кухни 19.30 кв. м
- Площадь санузла 5.06 кв. м
- Высота потолков 2.87 м
- квартал 4
- год 2026
- Евро да
- Отделка предчистовая
Похожие предложения
Ипотечный калькулятор
График средних цен по продаже однокомнатных квартир в Всеволожском районе
| Тип недвижимости | Средн. цена м2 | Изменение с 05.12.2024 | Разброс цен | Дата |
|---|---|---|---|---|
| Квартиры в новостройке | 181 571 руб. | + 16 646 руб. | 3 725 570 ... 8 986 310 руб. за объект | 11.11.25 |
| 179 312 руб. | + 14 387 руб. | 3 699 000 ... 8 978 270 руб. за объект | 28.10.25 | |
| 178 552 руб. | + 13 628 руб. | 3 693 860 ... 8 964 190 руб. за объект | 14.10.25 | |
| Квартиры вторичка | 173 723 руб. | + 20 469 руб. | 3 550 000 ... 8 878 330 руб. за объект | 11.11.25 |
| 175 744 руб. | + 22 489 руб. | 3 600 000 ... 8 878 330 руб. за объект | 28.10.25 | |
| 177 378 руб. | + 24 124 руб. | 3 600 000 ... 8 888 890 руб. за объект | 14.10.25 |
Инфраструктура района
- Детский сад компенсирующего вида
- Детский сад №6
- Всеволожская специальная (коррекционная) школа-интернат
- Средняя общеобразовательная школа №5
- Всеволожская центральная районная больница
- Поликлиника
Материалы по теме
Запишись на онлайн просмотр объекта







