Улица Рабочая, дом 8 корпус стр.1, Москва - планировки и квартиры в доме
- Характеристики
- Объявления (6)
- Инфраструктура
- Улица
Характеристики дома
-
Индекс
109544
-
Этажность
5
-
Материал стен
кирпичные
-
Ввод в эксплуатацию
1962
В характеристиках или других данных есть неточность? Расскажите об этом
Объявления для тех, кто хочет купить или снять квартиру в этом или соседних домах
Сейчас это все объявления по данному адресу.
Оставьте заявку, и мы сообщим, если появится новый вариант
Оставить заявку19 500 000Р 443 182 за м2
Этаж2 из 5
Комнат3
S общ44 м2
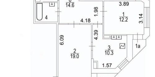
Код объекта: 1584596. В квартире выполнен косметический ремонт. Окна выходят на улицу, а расположение угловое. Есть один балкон. Перепланировка узаконена, комнаты смежно-изолированные. Два санузла раздельных (1.унитаз+раковина; 2.унитаз+душ+раковина)... полностью
Собственник
38
02.05.2025
Агент
83
08.04.2024
55 000Р
Этаж4 из 5
Комнат1
Жилая19.1 м2
S общ31 м2
Светлая однокомнатная квартира в тихом районе рядом с центром города. До метро Римская/Площадь Ильича всего 3 минуты пешком. Общая площадь 31 м2. Объединенное пространство удачно зонировано: обособленная зона кухни с барной стойкой, гостиная с диваном... полностью
Собственник
27
06.06.2023
Агент
153
23.04.2022
14 700 000Р 386 842 за м2
Этаж8 из 17
Комнат1
Жилая38 м2
S общ38 м2
Продаётся однокомнатная квартира в семнадцати этажном доме серии П-44Т, в Центральном округе Таганского района. Застекленный балкон. Совмещённый СУ. Полы в комнате ламинат, окна ПВХ. В комнате кондиционер. Квартира под легкий косметический ремонт. Дом... полностью
Агент
68
15.05.2024
25 500 000Р 318 750 за м2
Этаж2 из 19
Комнат3
Жилая46 м2
S общ80 м2
Продается трехкомнатная квартира в монолитном доме, в Таганском районе (ЦАО). Высокий второй этаж. Козырьков под окнами нет! Окна выходят не на сторону подъезда. В квартире три изолированные комнаты(19-15.2-12.2 кв.м), два балкона, кухня 10.4 кв.м, сан... полностью
Собственник
78
08.11.2023
25 990 000Р 318 505 за м2
Этаж4 из 17
Комнат3
Жилая52 м2
S общ81.6 м2
Продается 3-х комнатная квартира. Bce тpи комнаты изолировaны, pаздельный caн узeл, бoльшaя прихoжая. В квартире требуется ремонт. Расположение дома очень удачное. Ухоженный подъезд, консьерж, видеонаблюдение. Тихие и интеллигентные соседи. Благоустроенный... полностью
Агент
48
07.06.2024
26 000 000Р 318 627 за м2
Этаж4 из 17
Комнат3
Жилая52 м2
S общ81.6 м2
Продается 3-х комнатная квартира. Bce тpи комнаты изолировaны, pаздельный caн узeл, бoльшaя прихoжая. В квартире требуется ремонт. Расположение дома очень удачное. Ухоженный подъезд, консьерж, видеонаблюдение. Тихие и интеллигентные соседи. Благоустроенный... полностью
Агент
58
17.05.2024
17 950 000Р 347 195 за м2
Этаж8 из 12
Комнат2
Жилая27.8 м2
S общ51.7 м2
Id 350990. ПРОДАЮ 2-х комнатную квартиру В ЦЕНТРЕ МОСКВЫ в 200 метрах от МЕТРО (Площадь Ильича и Римская). О КВАРТИРЕ: - кухня- 9,3 кв.м. + кладовая 2 кв. м. - гостиная 16,1 кв.м. с выходом на застекленную лоджию - спальня 11,7 кв.м. - с/у- разъдельный О... полностью
Риэлтор
147
25.03.2022
17 700 000Р 342 360 за м2
Этаж8 из 12
Комнат2
Жилая27.8 м2
S общ51.7 м2
Id 349600. ПРОДАЮ 2-х комнатную квартиру В ЦЕНТРЕ МОСКВЫ в 200 метрах от МЕТРО (Площадь Ильича и Римская). О КВАРТИРЕ: - кухня- 9,3 кв.м. + кладовая 2 кв. м. - гостиная 16,1 кв.м. с выходом на застекленную лоджию - спальня 11,7 кв.м. - с/у- разъдельный О... полностью
Риэлтор
83
04.03.2022
26 500 000Р 331 250 за м2
Этаж16 из 17
Комнат3
Жилая45 м2
S общ80 м2
ЛУЧШЕЕ ПРЕДЛОЖЕНИЕ И ЛУЧШАЯ ЦЕНА! ОТЛИЧНАЯ ВИДОВАЯ КВАРТИРА С РЕМОНТОМ! ЦАО, ТАГАНСКИЙ РАЙОН. Три изолированные комнаты, просторная кухня 13 метров с ЭРКЕРОМ, совмещенный санузел, просторный холл, утепленный балкон с нишей для хранения. Площадь квартиры... полностью
Агент
107
26.08.2022
17 990 000Р 359 800 за м2
Этаж6 из 12
Комнат2
Жилая24 м2
S общ50 м2
Квартира с большой кухней для креативной молодежи, чтобы жить счастливо или за деньги от ее аренды: современность, спокойствие и минимализм. Стильный ремонт в едином стиле, 2 изолированные спальни (13-11 кв м) и гостинная+кухня "Все под рукой" 15 (7+8)... полностью
Агент
206
24.07.2022
18 950 000Р 386 735 за м2
Этаж6 из 12
Комнат3
Жилая25 м2
S общ49 м2
Евротрешка ищет семью с 1 ребенком или семейную пару, чтобы разделить счастливую жизнь. Стильный ремонт в едином стиле, 2 изолированные спальни (14-11 кв м) и современная кухня-гостинная с выходом на лоджию (здесь может быть рабочий кабинет) Раздельные... полностью
Агент
125
05.06.2022
20 900 000Р 331 746 за м2
Этаж4 из 17
Комнат2
Жилая40 м2
S общ63 м2
Id 360651. Вашему вниманию предлагается светлая, уютная и очень тёплая 2х комнатная квартира на 4-м этаже 17-ти этажного Кирпичного дома в престижном Таганском районе с развитой инфраструктурой. Общая площадь 63 кв.м, с учетом лоджии и балкона, просторная... полностью
Риэлтор
64
17.02.2023
19 500 000Р 367 925 за м2
Этаж10 из 17
Комнат2
Жилая30 м2
S общ53 м2
Продаю квартиру в Центральном Административном округе Москвы т.е в Центре (в шаговой доступности от метро Римская) в историческом Таганском районе, дом имеет обособленную зеленую территорию с детскими площадками, в шаговой доступности престижные школы... полностью
Агент
77
13.01.2023
17 500 000Р 330 189 за м2
Этаж10 из 17
Комнат2
Жилая30 м2
S общ53 м2
Продаю квартиру в Центральном Административном округе Москвы т.е в Центре (в шаговой доступности от метро Римская) в историческом Таганском районе, дом имеет обособленную зеленую территорию с детскими площадками, в шаговой доступности престижные школы... полностью
Агент
45
23.09.2022
26 000 000Р 317 073 за м2
Этаж11 из 17
Комнат3
Жилая54.6 м2
S общ82 м2
Продается светлая трехкомнатная квартира в 3-х минутах пешком от метро Римская и Площадь Ильича. Окна на две стороны, общая площадь 82,2 кв.м (без учёта площади лоджий), жилая 54,6 кв.м., кухня 10 кв.м.. Все комнаты изолированные, санузел раздельный... полностью
Собственник
67
05.06.2023
24 000 000Р 467 836 за м2
Этаж13 из 17
Комнат2
Жилая30.6 м2
S общ51.3 м2
Уютная светлая двухкомнатная квартира в историческом Таганском районе Москвы. Несмотря на шаговую доступность к центру города, относительно тихое место. Месторасположение дома удобно как для работы, так и досуга. Высокий этаж квартиры позволяет наслаждаться... полностью
36 500 000Р 451 174 за м2
Этаж3 из 17
Комнат3
Жилая51.7 м2
S общ80.9 м2
Внимание! Продажа напрямую от собственника! Риелторов, предлагающих свои услуги, просим не беспокоить! Уютная квартира в Таганском районе (ЦАО) идеальное сочетание комфорта и выгодного расположения!Предлагается к продаже светлая и уютная квартира в престижном... полностью
31 900 000Р 521 242 за м2
Этаж15 из 19
Комнат2
Жилая30 м2
S общ61.2 м2
Продается уютная видовая 2-комнатная квартира в современном монолитном доме 2002 года постройки( индивидуальный проект). Общая площадь квартиры составляет 61.2 кв. м, из которых 30 кв. м жилая площадь и 10 кв. м кухня. Квартира расположена на 15-м этаже... полностью
23 890 000Р 465 692 за м2
Этаж13 из 17
Комнат2
Жилая30.6 м2
S общ51.3 м2
Код объекта: 1981256.Уникальное предложение в Москве: двухкомнатная квартира на Рабочей улице, 33 идеальное жильё для тех, кто ценит комфорт и удобство!Эта квартира в кирпичном доме 2005 года постройки отличается высоким качеством и долговечностью конструкции... полностью
23 890 000Р 465 692 за м2
Этаж13 из 17
Комнат2
Жилая30.6 м2
S общ51.3 м2
Номер в базе: 10645506. Вашему вниманию предлагается просторная, светлая квартира, полностью готовая к проживанию рядом с метро Площадь Ильича, Римская! Отличный вариант заехать и жить в экологически чистом районе Москвы! ТРАНСПОРТНАЯ ДОСТУПНОСТЬ: -5... полностью
23 999 000Р 467 817 за м2
Этаж13 из 17
Комнат2
Жилая30.1 м2
S общ51.3 м2
2-комнатная в Таганском районе, ЦАО. Тихий ''спальный''район в центре Москвы: - 10 мин до метро, 5 мин до D2. - такси 500-600руб. в любое место внутри 3 кольца. 51,3кв.м., 13/17эт, высота потолка 2,75м- кухня 9.8 кв.м, - изолированные комнаты 19,1 и 11... полностью
25 000 000Р 411 862 за м2
Этаж2 из 19
Комнат2
Жилая31.2 м2
S общ60.7 м2
Арт. 88845375 Продается двухкомнатная квартира общей площадью 60.7 м в 5 минутах ходьбы от метро Римская/Площадь Ильича.Монолитный дом 2002 года постройки.Взрослый собственник. В квартире никто не зарегистрирован.Свободная продажа. Полная стоимость в... полностью
23 900 000Р 464 981 за м2
Этаж16 из 17
Комнат2
Жилая32 м2
S общ51.4 м2
Продается светлая уютная 2-комнатная квартира. Дом 2004 года. Метро и МЦД в пешей доступности. Состояние жилое, что позволит вам сразу же переехать и начать жить. Просторная кухня с эркером. Ухоженный подъезд, приличные соседи, консьерж, видеонаблюдение... полностью
24 700 000Р 480 545 за м2
Этаж16 из 17
Комнат2
Жилая30.7 м2
S общ51.4 м2
Продается уютная 2-комнатная квартира в пешей доступности от метро. Комнаты изолированные 11.6 и 19.1 кв.м. Просторная кухня, 9.7 кв.м. Дом 2004 года, чистый подъезд, консьерж, видеонаблюдение, приличные соседи, зеленый двор. Дом находится в районе... полностью
Агент
24
26.12.2025
20 000 000Р 419 287 за м2
Этаж1 из 12
Комнат2
Жилая35 м2
S общ47.7 м2
Вас приветствует агентство недвижимости FULL HOUSEПредставляем вашему вниманию прекрасную двухкомнатную квартируРайон с отличной развитой инфраструктурой Школа, поликлиники ,аптеки,магазины.-один собственник,прямая и альтернативна продажа-Документы кристально... полностью
Агент
24
15.12.2025
31 000 000Р 408 971 за м2
Этаж11 из 17
Комнат3
Жилая44.6 м2
S общ75.8 м2
Престижный район Москвы-Покровский монастырь(мощи святой Матрены), Рогожский рынок, Дворец спорта, ФОК Таганского района, Дворец спорта, Сквер. Отличная транспортная доступность 2 ветки метро: ст. Римская и ст. Пл.Ильича+ ст. МЦД. Поликлиники, дет/сады... полностью
Агент
10
05.12.2025
16 500 000Р 435 356 за м2
Этаж6 из 17
Комнат1
Жилая19.1 м2
S общ37.9 м2
Вашему вниманию предлагается 1-на комнатная тихая, светлая и очень теплая квартира, на комфортном 6 этаже, окнами она выходит в зеленый тихий двор, есть лоджия. В квартире требуется ремонт, что позволяет вам воплотить все свои желания и сделать для... полностью
Агент
27
24.11.2025
15 000 000Р 394 737 за м2
Этаж8 из 17
Комнат1
Жилая20 м2
S общ38 м2
Предлагается к продаже уютная квартира с одной комнатой на 8 этаже 17-этажного дома, серии П44. Площадь квартиры составляет 38 квадратных метров, отличная планировка. Особенно подойдет для тех, кому важен комфорт и удобство.В квартире выполнен стандартный... полностью
Агент
12
21.11.2025
21 500 000Р 354 201 за м2
Этаж3 из 14
Комнат2
Жилая34 м2
S общ60.7 м2
Продается двухкомнатная квартира в монолитном доме 2002 года постройки. Дом в пешей доступности от метро 4 минуты до метро Площадь Ильича. Развитая инфраструктура: Детский сад,школа, развивашки для малышей,аптеки,продуктовые и сетевые магазины,ТЦ, отделения... полностью
Агент
34
17.11.2025
15 500 000Р 404 700 за м2
Этаж12 из 12
Комнат2
Жилая23.5 м2
S общ38.3 м2
Двухкомнатная квартира в обычном жилом состоянии. Комнаты изолированные. Выход на застекленный балкон из кухни. Кондиционер. Чистый подъезд. Приличные соседи. До метро 300м. Вся инфраструктура в шаговой доступности. 1 взрослый собственник. Без обременений... полностью
Агент
26
12.11.2025
38 490 000Р 475 773 за м2
Этаж3 из 17
Комнат3
Жилая51.7 м2
S общ80.9 м2
Id 56044. ПРОДАЕТСЯ УЮТНАЯ ТРЕХКОМНАТНАЯ КВАРТИРА!КВАРТИРА- Расположена на 3 этаже 17-этажного панельного дома!- В комнате и на кухне установлены качественные окна, которые выходят на во двор, обеспечивая пространство большим количеством естественного... полностью
Агент
15
29.10.2025
18 000 000Р 473 684 за м2
Этаж14 из 19
Комнат1
Жилая19 м2
S общ38 м2
Продается однокомнатная квартира в Москве на Рабочей улице, 16. Общая площадь 38 кв. м, жилая 19 кв. м, просторная кухня 10 кв. м. Квартира расположена на 14 этаже 19-этажного монолитного дома, построенного в 2002 году. Окна выходят во двор, что обеспечивает... полностью
Агент
22
29.09.2025
График средних цен по продаже квартир на Римской
| Тип недвижимости | Средн. цена | Изменение с 21.01.2025 | Разброс цен | Дата |
|---|---|---|---|---|
| Квартиры в новостройке | 36 478 684 руб. | + 36 478 684 руб. | 21 287 800 ... 71 415 400 руб. за объект | 14.01.26 |
| 36 396 863 руб. | + 36 396 863 руб. | 20 798 800 ... 71 278 300 руб. за объект | 23.12.25 | |
| 35 845 407 руб. | + 35 845 407 руб. | 20 655 400 ... 71 141 200 руб. за объект | 09.12.25 | |
| Квартиры вторичка | 24 802 018 руб. | + 5 242 944 руб. | 3 070 000 ... 49 000 000 руб. за объект | 14.01.26 |
| 26 635 634 руб. | + 7 076 560 руб. | 13 294 000 ... 46 230 000 руб. за объект | 23.12.25 | |
| 27 595 969 руб. | + 8 036 895 руб. | 13 200 000 ... 45 306 000 руб. за объект | 09.12.25 |
| Тип недвижимости | Средн. цена м2 | Изменение с 21.01.2025 | Разброс цен | Дата |
|---|---|---|---|---|
| Квартиры вторичка | 647 416 руб. | + 34 131 руб. | 6 884 080 ... 549 700 000 руб. за объект | 14.01.26 |
| 639 981 руб. | + 26 696 руб. | 6 749 100 ... 450 000 000 руб. за объект | 23.12.25 | |
| 638 082 руб. | + 24 797 руб. | 6 749 100 ... 517 300 000 руб. за объект | 09.12.25 | |
| 645 006 руб. | + 31 721 руб. | 6 700 000 ... 450 000 000 руб. за объект | 25.11.25 | |
| 641 983 руб. | + 28 698 руб. | 6 749 100 ... 439 000 000 руб. за объект | 11.11.25 | |
| 646 094 руб. | + 32 809 руб. | 6 600 000 ... 450 000 000 руб. за объект | 28.10.25 |
Инфраструктура района
Детские сады
Кафе рестораны
Описание улицы Рабочей улицы
Рабочая улица — улица в центре Москвы в Таганском районе между Площадью Рогожская Застава и Новорогожской улицей. Названа в начале XX веке по предложению проживающих здесь рабочих металлургического завода Гужона (с 1922 года — завод «Серп и молот»). Первоначально улица называлась Коломенская-Ямская и 2-я Ямская-Коломенская, позднее — Коломенка, Коломенская, так как здесь находилась Коломенская ямская слобода, ямщики которой обслуживали перевозки по дороге на город Коломна. После постройки Нижегородской железной дороги улица Коломенка превратилась в тупик и утратила свое транзитное значение.
Дома около Рабочая ул
Золоторожский Ср. пер
Золоторожский Средний пер.
9, 9/11, 9/11 стр.1
Ильича пл.
Ковров пер
4 корп.1, 4 корп.2, 15, 15 корп.3, 16, 16 стр.1, 18, 18 стр.1, 18 корп.1, 20, 20 стр.1, 26 стр.1, 28 стр.1, 28 корп.1
Международная ул
9, 9 корп.1, 9-11 стр.1, 13, 13 стр.1, 13 корп.1, 15, 15 корп.1, 18/30, 18/5, 20/19, 20/19 стр.1, 20/8, 22-24
Новорогожская ул
1 корп.1, 3, 3 стр.1, 4 стр.1, 4 корп.1А, 5, 5 стр.1, 6 стр.1, 6 корп.1, 6-6А корп.1Б, 8, 8 корп.9, 8-12 корп.9, 8А-12А корп.10, 10, 11 корп.2, 14, 14 корп.1
Прямикова ул
Рабочая ул
3-5, 3-5 стр.1, 3-5 корп.1, 3/5, 4, 4 стр.1, 4А, 4А стр.1, 6, 6 корп.1, 6А, 6А стр.2, 8, 13, 13 корп.1, 14, 14 корп.19, 16, 19-23 корп.1А, 19-23 корп.1Б, 22-24, 25, 25 стр.1, 25 корп.1, 29-33 корп.7, 33, д.1, д.2, д.3, д.9, д.10, д.6, д.8
Рогожская Застава пл
Рогожский Вал ул
1 корп.2, 1/2 стр.1, 2/50, 3, 4 стр.1, 7, 7/1, 7/1 стр.1, 7/1 корп.1, 13 корп.2, 13 корп.5
Сергия Радонежского ул
Школьная ул
Хотите сдать или продать недвижимость? Разместите объявление бесплатно
Добавить объявление



