Улица Расплетина, дом 21, Москва - планировки и квартиры в доме
- Характеристики
- Объявления (11)
- Инфраструктура
- Улица
Характеристики дома
-
Индекс
123060
-
Этажность
31
-
Тип дома
-
Кадастровый номер
77:08:0011001:30
-
Площадь здания
34582 кв. м
-
Материал стен
Монолитные
-
Ввод в эксплуатацию
2011
-
Управляющая компания
ДС Эксплуатация
-
Тип перекрытий
Железобетонные
-
Количество лифтов
4
-
Площадь нежилых помещений
8885.70
-
Площадь участка
6700.00
-
Площадь придомовой территории
500.00
В характеристиках или других данных есть неточность? Расскажите об этом
Объявления для тех, кто хочет купить или снять квартиру в этом или соседних домах
Сейчас это все объявления по данному адресу.
Оставьте заявку, и мы сообщим, если появится новый вариант
Оставить заявку220 000 000Р 668 693 за м2
Этажей32
S общ329 м2
Коммерческое помещение на улице Расплетина в Щукино. Близость торгово-развлекательного центра Пятая Авеню и остановки общественного транспорта обеспечивает большой пешеходный и автомобильный трафик. Окружение бар Marka, супермаркет БиМ , лаборатория... полностью
Собственник
31
27.09.2025
56 350 000Р 498 673 за м2
Этаж10 из 32
Комнат3
S общ113 м2
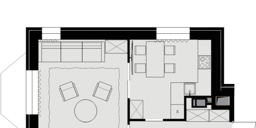
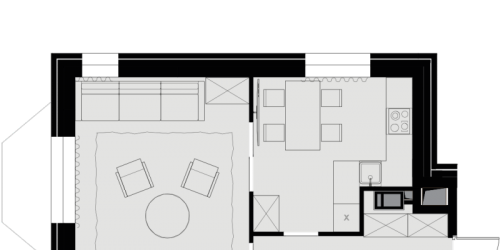
Предлагается на продажу 3-комнатная квартира площадью 112.7 м² в ЖК бизнес-класса «Дом в сосновой роще» в окружении парков Планировка: кухня-гостиная, две спальни и два санузла. Квартира готова к заселению: выполнена отделка, есть мебель и необходимая... полностью
Собственник
40
25.08.2025
42 000 000Р 552 632 за м2
Этаж20 из 32
Комнат2
S общ76 м2
Код объекта: 1556605. Уникальная возможность стать владельцем просторной двухкомнатной квартиры в одном из престижных районов столицы, ЖК Дом в Сосновой роще! Вашему вниманию предлагается светлая и уютная квартира площадью 75,8 квадратных метров, расположенная... полностью
Собственник
30
23.07.2025
Собственник
27
02.12.2025
290 000Р
Этаж23 из 32
Комнат3
S общ110 м2
Предлагается 3-комнатная квартира общей площадью 110 м² в ЖК Дом в сосновой роще недалеко от станции метро Октябрьское Поле. Высокие потолки увеличивают пространство, наполняя его светом. Для комфортного проживания в наличии имеется вся необходимая мебель... полностью
Собственник
41
09.02.2025
61 620 000Р 650 000 за м2
Этаж14 из 19
Комнат/всего3
Жилая43.8 м2
S общ94.8 м2
4 корпуса ЖК «Театральный квартал» возрождают статусную и респектабельную архитектуру сталинской эпохи. Архитектурный ансамбль комплекса воплощает идеи знаменитого сталинского неоклассицизма это стиль настоящей столицы, какой ее любят многие поколения... полностью
37 428 800Р 628 000 за м2
Этаж19 из 19
Комнат/всего2
Жилая35.4 м2
S общ59.6 м2
4 корпуса ЖК «Театральный квартал» возрождают статусную и респектабельную архитектуру сталинской эпохи. Архитектурный ансамбль комплекса воплощает идеи знаменитого сталинского неоклассицизма это стиль настоящей столицы, какой ее любят многие поколения... полностью
39 815 700Р 629 000 за м2
Этаж19 из 19
Комнат/всего2
Жилая35.4 м2
S общ63.3 м2
4 корпуса ЖК «Театральный квартал» возрождают статусную и респектабельную архитектуру сталинской эпохи. Архитектурный ансамбль комплекса воплощает идеи знаменитого сталинского неоклассицизма это стиль настоящей столицы, какой ее любят многие поколения... полностью
38 376 000Р 615 000 за м2
Этаж17 из 19
Комнат/всего2
Жилая22.9 м2
S общ62.4 м2
4 корпуса ЖК «Театральный квартал» возрождают статусную и респектабельную архитектуру сталинской эпохи. Архитектурный ансамбль комплекса воплощает идеи знаменитого сталинского неоклассицизма это стиль настоящей столицы, какой ее любят многие поколения... полностью
37 190 400Р 624 000 за м2
Этаж10 из 19
Комнат/всего2
Жилая35.4 м2
S общ59.6 м2
4 корпуса ЖК «Театральный квартал» возрождают статусную и респектабельную архитектуру сталинской эпохи. Архитектурный ансамбль комплекса воплощает идеи знаменитого сталинского неоклассицизма это стиль настоящей столицы, какой ее любят многие поколения... полностью
38 994 900Р 651 000 за м2
Этаж17 из 26
Комнат/всего2
Жилая26.5 м2
S общ59.9 м2
4 корпуса ЖК «Театральный квартал» возрождают статусную и респектабельную архитектуру сталинской эпохи. Архитектурный ансамбль комплекса воплощает идеи знаменитого сталинского неоклассицизма это стиль настоящей столицы, какой ее любят многие поколения... полностью
39 625 000Р 625 000 за м2
Этаж10 из 19
Комнат/всего2
Жилая27.2 м2
S общ63.4 м2
4 корпуса ЖК «Театральный квартал» возрождают статусную и респектабельную архитектуру сталинской эпохи. Архитектурный ансамбль комплекса воплощает идеи знаменитого сталинского неоклассицизма это стиль настоящей столицы, какой ее любят многие поколения... полностью
61 685 000Р 650 000 за м2
Этаж6 из 19
Комнат/всего3
Жилая43.8 м2
S общ94.9 м2
4 корпуса ЖК «Театральный квартал» возрождают статусную и респектабельную архитектуру сталинской эпохи. Архитектурный ансамбль комплекса воплощает идеи знаменитого сталинского неоклассицизма это стиль настоящей столицы, какой ее любят многие поколения... полностью
38 003 000Р 610 000 за м2
Этаж5 из 19
Комнат/всего2
Жилая37.6 м2
S общ62.3 м2
4 корпуса ЖК «Театральный квартал» возрождают статусную и респектабельную архитектуру сталинской эпохи. Архитектурный ансамбль комплекса воплощает идеи знаменитого сталинского неоклассицизма это стиль настоящей столицы, какой ее любят многие поколения... полностью
36 773 200Р 617 000 за м2
Этаж3 из 19
Комнат/всего2
Жилая35.4 м2
S общ59.6 м2
4 корпуса ЖК «Театральный квартал» возрождают статусную и респектабельную архитектуру сталинской эпохи. Архитектурный ансамбль комплекса воплощает идеи знаменитого сталинского неоклассицизма это стиль настоящей столицы, какой ее любят многие поколения... полностью
39 246 000Р 620 000 за м2
Этаж3 из 19
Комнат/всего2
Жилая35.4 м2
S общ63.3 м2
4 корпуса ЖК «Театральный квартал» возрождают статусную и респектабельную архитектуру сталинской эпохи. Архитектурный ансамбль комплекса воплощает идеи знаменитого сталинского неоклассицизма это стиль настоящей столицы, какой ее любят многие поколения... полностью
63 583 000Р 670 000 за м2
Этаж16 из 19
Комнат/всего3
Жилая43.8 м2
S общ94.9 м2
4 корпуса ЖК «Театральный квартал» возрождают статусную и респектабельную архитектуру сталинской эпохи. Архитектурный ансамбль комплекса воплощает идеи знаменитого сталинского неоклассицизма это стиль настоящей столицы, какой ее любят многие поколения... полностью
65 875 000Р 625 000 за м2
Этаж6 из 19
Комнат/всего4
Жилая67 м2
S общ105.4 м2
4 корпуса ЖК «Театральный квартал» возрождают статусную и респектабельную архитектуру сталинской эпохи. Архитектурный ансамбль комплекса воплощает идеи знаменитого сталинского неоклассицизма это стиль настоящей столицы, какой ее любят многие поколения... полностью
65 348 000Р 620 000 за м2
Этаж4 из 19
Комнат/всего4
Жилая67 м2
S общ105.4 м2
4 корпуса ЖК «Театральный квартал» возрождают статусную и респектабельную архитектуру сталинской эпохи. Архитектурный ансамбль комплекса воплощает идеи знаменитого сталинского неоклассицизма это стиль настоящей столицы, какой ее любят многие поколения... полностью
63 449 000Р 670 000 за м2
Этаж20 из 26
Комнат/всего3
Жилая43.8 м2
S общ94.7 м2
4 корпуса ЖК «Театральный квартал» возрождают статусную и респектабельную архитектуру сталинской эпохи. Архитектурный ансамбль комплекса воплощает идеи знаменитого сталинского неоклассицизма это стиль настоящей столицы, какой ее любят многие поколения... полностью
15
18.02.2026
39 062 400Р 626 000 за м2
Этаж18 из 19
Комнат/всего2
Жилая22.9 м2
S общ62.4 м2
4 корпуса ЖК «Театральный квартал» возрождают статусную и респектабельную архитектуру сталинской эпохи. Архитектурный ансамбль комплекса воплощает идеи знаменитого сталинского неоклассицизма это стиль настоящей столицы, какой ее любят многие поколения... полностью
54
29.01.2026
26 532 000Р 670 000 за м2
Этаж16 из 19
Комнат/всего1
Жилая14.7 м2
S общ39.6 м2
4 корпуса ЖК «Театральный квартал» возрождают статусную и респектабельную архитектуру сталинской эпохи. Архитектурный ансамбль комплекса воплощает идеи знаменитого сталинского неоклассицизма это стиль настоящей столицы, какой ее любят многие поколения... полностью
43
10.01.2026
38 064 000Р 610 000 за м2
Этаж16 из 19
Комнат/всего2
Жилая22.9 м2
S общ62.4 м2
4 корпуса ЖК «Театральный квартал» возрождают статусную и респектабельную архитектуру сталинской эпохи. Архитектурный ансамбль комплекса воплощает идеи знаменитого сталинского неоклассицизма это стиль настоящей столицы, какой ее любят многие поколения... полностью
51
08.01.2026
37 940 700Р 609 000 за м2
Этаж13 из 19
Комнат/всего2
Жилая37.6 м2
S общ62.3 м2
4 корпуса ЖК «Театральный квартал» возрождают статусную и респектабельную архитектуру сталинской эпохи. Архитектурный ансамбль комплекса воплощает идеи знаменитого сталинского неоклассицизма это стиль настоящей столицы, какой ее любят многие поколения... полностью
52
14.12.2025
22 334 400Р 564 000 за м2
Этаж9 из 19
Комнат/всего1
Жилая14.7 м2
S общ39.6 м2
4 корпуса ЖК «Театральный квартал» возрождают статусную и респектабельную архитектуру сталинской эпохи. Архитектурный ансамбль комплекса воплощает идеи знаменитого сталинского неоклассицизма это стиль настоящей столицы, какой ее любят многие поколения... полностью
51
29.10.2025
23 368 500Р 577 000 за м2
Этаж16 из 19
Комнат/всего1
Жилая12.7 м2
S общ40.5 м2
4 корпуса ЖК «Театральный квартал» возрождают статусную и респектабельную архитектуру сталинской эпохи. Архитектурный ансамбль комплекса воплощает идеи знаменитого сталинского неоклассицизма это стиль настоящей столицы, какой ее любят многие поколения... полностью
36
28.10.2025
22 453 200Р 567 000 за м2
Этаж14 из 19
Комнат/всего1
Жилая14.7 м2
S общ39.6 м2
4 корпуса ЖК «Театральный квартал» возрождают статусную и респектабельную архитектуру сталинской эпохи. Архитектурный ансамбль комплекса воплощает идеи знаменитого сталинского неоклассицизма это стиль настоящей столицы, какой ее любят многие поколения... полностью
44
27.10.2025
23 247 000Р 574 000 за м2
Этаж15 из 19
Комнат/всего1
Жилая12.7 м2
S общ40.5 м2
4 корпуса ЖК «Театральный квартал» возрождают статусную и респектабельную архитектуру сталинской эпохи. Архитектурный ансамбль комплекса воплощает идеи знаменитого сталинского неоклассицизма это стиль настоящей столицы, какой ее любят многие поколения... полностью
34
19.10.2025
37 003 200Р 593 000 за м2
Этаж14 из 19
Комнат/всего2
Жилая22.9 м2
S общ62.4 м2
4 корпуса ЖК «Театральный квартал» возрождают статусную и респектабельную архитектуру сталинской эпохи. Архитектурный ансамбль комплекса воплощает идеи знаменитого сталинского неоклассицизма это стиль настоящей столицы, какой ее любят многие поколения... полностью
45
26.09.2025
37 564 800Р 602 000 за м2
Этаж15 из 19
Комнат/всего2
Жилая22.9 м2
S общ62.4 м2
4 корпуса ЖК «Театральный квартал» возрождают статусную и респектабельную архитектуру сталинской эпохи. Архитектурный ансамбль комплекса воплощает идеи знаменитого сталинского неоклассицизма это стиль настоящей столицы, какой ее любят многие поколения... полностью
43
15.09.2025
34 569 600Р 554 000 за м2
Этаж4 из 19
Комнат/всего2
Жилая22.9 м2
S общ62.4 м2
4 корпуса ЖК «Театральный квартал» возрождают статусную и респектабельную архитектуру сталинской эпохи. Архитектурный ансамбль комплекса воплощает идеи знаменитого сталинского неоклассицизма это стиль настоящей столицы, какой ее любят многие поколения... полностью
54
26.08.2025
23 403 600Р 591 000 за м2
Этаж8 из 19
Комнат/всего1
Жилая14.7 м2
S общ39.6 м2
4 корпуса ЖК «Театральный квартал» возрождают статусную и респектабельную архитектуру сталинской эпохи. Архитектурный ансамбль комплекса воплощает идеи знаменитого сталинского неоклассицизма это стиль настоящей столицы, какой ее любят многие поколения... полностью
39
26.08.2025
19 285 000Р 665 000 за м2
Этаж16 из 19
Комнат/всего1
Жилая8.4 м2
S общ29 м2
4 корпуса ЖК «Театральный квартал» возрождают статусную и респектабельную архитектуру сталинской эпохи. Архитектурный ансамбль комплекса воплощает идеи знаменитого сталинского неоклассицизма это стиль настоящей столицы, какой ее любят многие поколения... полностью
36
05.06.2025
27 230 000Р 700 000 за м2
Этаж18 из 19
Комнат/всего1
Жилая11.3 м2
S общ38.9 м2
4 корпуса ЖК «Театральный квартал» возрождают статусную и респектабельную архитектуру сталинской эпохи. Архитектурный ансамбль комплекса воплощает идеи знаменитого сталинского неоклассицизма это стиль настоящей столицы, какой ее любят многие поколения... полностью
44
03.06.2025
График средних цен по продаже квартир на Октябрьском поле
| Тип недвижимости | Средн. цена | Изменение с 01.04.2025 | Разброс цен | Дата |
|---|---|---|---|---|
| Квартиры в новостройке | 31 624 156 руб. | + 1 213 599 руб. | 20 193 300 ... 65 348 000 руб. за объект | 24.03.26 |
| 31 518 204 руб. | + 1 107 647 руб. | 20 193 300 ... 65 348 000 руб. за объект | 10.03.26 | |
| 31 785 204 руб. | + 1 374 647 руб. | 20 052 300 ... 65 369 200 руб. за объект | 24.02.26 | |
| Квартиры вторичка | 38 750 544 руб. | + 7 423 656 руб. | 13 000 000 ... 128 500 000 руб. за объект | 24.03.26 |
| 38 026 024 руб. | + 6 699 136 руб. | 12 600 000 ... 125 000 000 руб. за объект | 10.03.26 | |
| 37 776 202 руб. | + 6 449 314 руб. | 12 600 000 ... 129 000 000 руб. за объект | 24.02.26 |
| Тип недвижимости | Средн. цена м2 | Изменение с 01.04.2025 | Разброс цен | Дата |
|---|---|---|---|---|
| Квартиры в новостройке | 596 792 руб. | + 72 724 руб. | 22 446 500 ... 68 010 200 руб. за объект | 24.03.26 |
| 563 752 руб. | + 39 684 руб. | 21 033 900 ... 65 875 000 руб. за объект | 10.03.26 | |
| 552 807 руб. | + 28 739 руб. | 20 492 200 ... 65 348 000 руб. за объект | 24.02.26 | |
| Квартиры вторичка | 494 218 руб. | + 39 958 руб. | 13 200 000 ... 125 997 000 руб. за объект | 24.03.26 |
| 483 712 руб. | + 29 452 руб. | 12 600 000 ... 110 000 000 руб. за объект | 10.03.26 | |
| 478 619 руб. | + 24 360 руб. | 12 000 000 ... 125 000 000 руб. за объект | 24.02.26 |
Инфраструктура района
Детские сады
Школы
Кафе рестораны
Описание улицы улицы Расплетина
Улица Расплетина — улица на северо-западе Москвы в районе Щукино Северо-Западного административного округа между улицами Берзарина и Маршала Рыбалко. В 1967 году 4-я улица Октябрьского Поля была переименована в память об академике Александре Андреевиче Расплетине (1908—1967) — Герое Социалистического Труда, ученом и конструкторе, специалисте в области радиотехники и электроники. Улица была проложена в 1948 году во время застройки Октябрьского поля (части бывшего Ходынского поля). До 1967 года — 4-я улица Октябрьского Поля. Первоначально (в XIX — начале XX в.) часть Ходынского поля, где проводились учения войск, стоявших в Ходынских военных лагерях, называлась Военное поле. В 1922 году в ознаменование Октябрьской революции поле переименовали в Октябрьское.
Новости на улице Расплетина
string(36) "Маршала Бирюзова ул" string(36) "Маршала Бирюзова ул" string(36) "Маршала Бирюзова ул" string(36) "Маршала Бирюзова ул" string(36) "Маршала Бирюзова ул" string(36) "Маршала Бирюзова ул" string(36) "Маршала Бирюзова ул" string(36) "Маршала Бирюзова ул" string(36) "Маршала Бирюзова ул" string(36) "Маршала Бирюзова ул" string(36) "Маршала Бирюзова ул" string(36) "Маршала Бирюзова ул" string(36) "Маршала Бирюзова ул" string(36) "Маршала Бирюзова ул" string(36) "Маршала Бирюзова ул" string(36) "Маршала Бирюзова ул" string(36) "Маршала Бирюзова ул" string(36) "Маршала Бирюзова ул" string(36) "Маршала Бирюзова ул" string(36) "Маршала Бирюзова ул" string(36) "Маршала Бирюзова ул" string(36) "Маршала Бирюзова ул" string(36) "Маршала Бирюзова ул" string(36) "Маршала Бирюзова ул" string(36) "Маршала Бирюзова ул" string(36) "Маршала Бирюзова ул" string(36) "Маршала Бирюзова ул" string(36) "Маршала Бирюзова ул" string(44) "Волоколамский 3-й проезд" string(44) "Волоколамский 3-й проезд" string(44) "Волоколамский 3-й проезд" string(44) "Волоколамский 3-й проезд" string(44) "Волоколамский 3-й проезд" string(44) "Волоколамский 3-й проезд" string(44) "Волоколамский 3-й проезд" string(44) "Волоколамский 3-й проезд" string(44) "Волоколамский 3-й проезд" string(44) "Волоколамский 3-й проезд" string(44) "Волоколамский 3-й проезд" string(44) "Волоколамский 3-й проезд" string(32) "Маршала Конева ул" string(32) "Маршала Конева ул" string(32) "Маршала Конева ул" string(32) "Маршала Конева ул" string(32) "Маршала Конева ул" string(32) "Маршала Конева ул" string(21) "Пехотная ул" string(21) "Пехотная ул" string(21) "Пехотная ул" string(21) "Пехотная ул" string(21) "Пехотная ул" string(21) "Пехотная ул" string(21) "Пехотная ул" string(25) "Расплетина ул" string(25) "Расплетина ул" string(25) "Расплетина ул" string(25) "Расплетина ул" string(25) "Расплетина ул" string(25) "Расплетина ул" string(25) "Расплетина ул" string(25) "Расплетина ул" string(25) "Расплетина ул" string(25) "Расплетина ул" string(25) "Расплетина ул" string(25) "Расплетина ул" string(25) "Расплетина ул" string(25) "Расплетина ул" string(25) "Расплетина ул" string(25) "Расплетина ул" string(25) "Расплетина ул" string(34) "Маршала Рыбалко ул" string(34) "Маршала Рыбалко ул" string(34) "Маршала Рыбалко ул" string(34) "Маршала Рыбалко ул" string(34) "Маршала Рыбалко ул" string(34) "Маршала Рыбалко ул" string(34) "Маршала Рыбалко ул" string(34) "Маршала Рыбалко ул" string(34) "Маршала Рыбалко ул" string(44) "Маршала Соколовского ул" string(44) "Маршала Соколовского ул" string(44) "Маршала Соколовского ул" string(32) "Маршала Конева ул" string(25) "Расплетина ул"Дома около Расплетина ул
Волоколамский 3-й проезд
2, 2 стр.1, 2 корп.1, 6 стр.2, 6 корп.1, 6 корп.2, 8 стр.1, 8 стр.2, 8 корп.1, 8 корп.2, 10 стр.1, 10 корп.1
Маршала Бирюзова ул
4 стр.2, 28, 28 стр.1, 30, 31, 32, 32 корп.1, 34, 35 стр.1, 35 стр.2, 35 корп.1, 35 корп.2, 36, 36 стр.1, 37, 37 стр.1, 37 корп.1, 38, 38 стр.1, 38 корп.1, 39, 39 стр.1, 40, 40 стр.1, 41, 41 стр.2, 43, 43 стр.1
Маршала Конева ул
Маршала Рыбалко ул
16 стр.4, 16 корп.1, 16 корп.2, 16 корп.3, 16 корп.4, 18 стр.1, 18 корп.2, 18 корп.3, 20
Маршала Соколовского ул
Пехотная ул
Расплетина ул
7, 9, 11, 13, 15, 17, 17 корп.1, 17 корп.2, 19, 19 корп.1, 19 корп.2, 28, 28-30, 32, 32 корп.1, 34, 34 стр.1, 22 корп.2
Хотите сдать или продать недвижимость? Разместите объявление бесплатно
Добавить объявление


