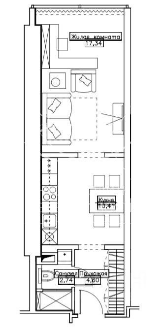
Характеристики
- Количество комнат 1
- Тип дома монолитный
- Этаж 9
- Этажей всего 12
- Ближайшее метро Маяковская
- Студия нет
- Апартаменты да
- Санузел совмещенный с/у
- Площадь жилая 16.00 кв. м
- Площадь кухни 10.00 кв. м
- Отделка без отделки
- Вид из окон на улицу
- Ипотека нет
Похожие предложения
Ипотечный калькулятор
График средних цен по продаже однокомнатных квартир в Тверском районе
| Тип недвижимости | Средн. цена м2 | Изменение с 15.04.2025 | Разброс цен | Дата |
|---|---|---|---|---|
| Квартиры в новостройке | 3 004 617 руб. | - 321 731 руб. | 81 156 200 ... 745 200 000 руб. за объект | 24.03.26 |
| 3 004 617 руб. | - 321 731 руб. | 81 156 200 ... 745 200 000 руб. за объект | 10.03.26 | |
| 3 012 740 руб. | - 313 608 руб. | 81 156 200 ... 745 200 000 руб. за объект | 24.02.26 | |
| Квартиры вторичка | 1 111 525 руб. | + 322 945 руб. | 16 930 000 ... 202 000 000 руб. за объект | 24.03.26 |
| 1 089 465 руб. | + 300 885 руб. | 16 800 000 ... 202 000 000 руб. за объект | 10.03.26 | |
| 1 107 135 руб. | + 318 556 руб. | 16 800 000 ... 202 000 000 руб. за объект | 24.02.26 |
Инфраструктура района
- Прогимназия №1755
- Мир искусств
- Гимназия №1529
- Больница с поликлиникой при Управлении делами Президента РФ
- Городская клиническая больница №19
- Сквер Девичьего поля
- Александровский сад
Материалы по теме
Запишись на онлайн просмотр объекта










