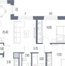
Характеристики
- Количество комнат для продажи/аренды 1
- Количество комнат всего 1
- Этаж 9
- Этажей всего 14
- Ближайшее метро Новочеркасская
Похожие предложения
Ипотечный калькулятор
График средних цен по продаже однокомнатных квартир в Красногвардейском районе
| Тип недвижимости | Средн. цена м2 | Изменение с 18.03.2025 | Разброс цен | Дата |
|---|---|---|---|---|
| Квартиры в новостройке | 242 847 руб. | + 24 170 руб. | 3 978 000 ... 14 474 200 руб. за объект | 24.02.26 |
| 240 887 руб. | + 22 210 руб. | 3 937 200 ... 13 943 200 руб. за объект | 29.01.26 | |
| 238 926 руб. | + 20 249 руб. | 3 796 440 ... 13 321 200 руб. за объект | 14.01.26 | |
| Квартиры вторичка | 246 793 руб. | + 17 031 руб. | 5 100 000 ... 24 500 000 руб. за объект | 24.02.26 |
| 232 264 руб. | + 2 501 руб. | 5 150 000 ... 25 500 000 руб. за объект | 10.02.26 | |
| 238 520 руб. | + 8 758 руб. | 4 950 000 ... 24 980 000 руб. за объект | 29.01.26 |
Инфраструктура района
- Детский сад №17
- Детский сад №43
- Школа-интернат для слепых и слабовидящих детей №1 им. К.К. Грота
- Специальная коррекционная школа-интернат №51 для детей-сирот и детей
- Детская городская поликлиника №68
- Детская городская поликлиника №68
- Сад Санкт-Петербургской Духовной Академии
- Заневский парк
Материалы по теме
Запишись на онлайн просмотр объекта
