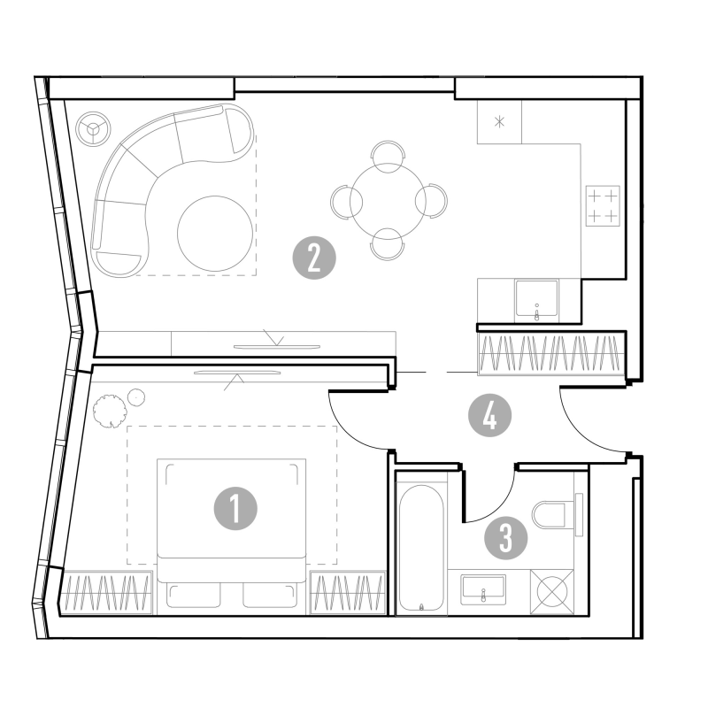
Характеристики
- Количество комнат для продажи/аренды 1
- Количество комнат всего 1
- Этаж 6
- Этажей всего 35
- До метро 7 мин
- До метро, транспортом на автобусе
- Апартаменты нет
- Высота потолков 2.85 м
- квартал 1
- год 2028
- Евро да
- Отделка без отделки
Похожие предложения
Ипотечный калькулятор
График средних цен по продаже однокомнатных квартир в Можайском районе
| Тип недвижимости | Средн. цена м2 | Изменение с 04.03.2025 | Разброс цен | Дата |
|---|---|---|---|---|
| Квартиры вторичка | 403 043 руб. | + 47 829 руб. | 9 200 000 ... 26 000 000 руб. за объект | 24.02.26 |
| 393 413 руб. | + 38 199 руб. | 9 200 000 ... 30 940 000 руб. за объект | 10.02.26 | |
| 411 555 руб. | + 56 341 руб. | 4 599 000 ... 26 500 000 руб. за объект | 29.01.26 | |
| 408 939 руб. | + 53 725 руб. | 8 600 000 ... 28 600 000 руб. за объект | 14.01.26 | |
| 399 919 руб. | + 44 705 руб. | 8 400 000 ... 26 000 000 руб. за объект | 23.12.25 | |
| 403 162 руб. | + 47 948 руб. | 8 500 000 ... 27 000 000 руб. за объект | 09.12.25 |
Инфраструктура района
- Комп Лэнг
- Fast English
- Городская клиническая больница №72
- Центральная клиническая больница Управления Делами Президента РФ
Материалы по теме
Запишись на онлайн просмотр объекта





