Мы используем "cookies". Продолжая просмотр, Вы принимаете Пользовательское соглашение и Политику обработки персональных данных.

140 699 объектов недвижимости Санкт-Петербурга

Продажа - 3-комн квартира, 76 кв. м. Октябрьская наб д. 42

18 400 000 Р

242 105 Р за м2 (в у.е.)

229 354 $ | 200 033 €
курсы валют
Бесплатно оцени свою квартиру
  • 76.00 м2

    Общая

  • 20.00 м2

    Кухня

  • 9 из 18

    Этаж

Санкт-Петербург, Юго-Восток, Невский, Весёлый Поселок, Октябрьская наб, д. 42

на карте
  • Ломоносовская (2.4 км)
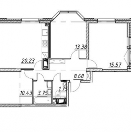
В ЖК Цивилизация на Неве продаётся 3-к квартира 75,61м2. Квартира с увеличенными окнами. Прихожая 8,68м2, санузел 3,75м2 и 1,75м2, кухня 20.23м2, комната 13,38м2, 15,57м2 и 10,43м2. Лоджия 3,64м2. В районе расположены парки и скверы, работают магазины, отделения почты и банков, ТРК «Лондон Молл». Жилой комплекс расположен в Невском районе на Октябрьской набережной. Проект включает в себя четыре детских сада, две школы и детский образовательный центр. На первых этажах корпусов предусмотрены коммерческие помещения. Придомовая территория ... развернуть
Александра Колосова
Показать телефон

Эта квартира на вторичке
в ипотеку

от 88 254 ₽ в месяц

26 предложений от 14 банков

Рассчитать и получить
одобрение онлайн

Информация по объекту недвижимости, собственниках, обременениях и аресте, выписка ЕГРН.
Перед заказом уточните у продавца по телефону точный адрес до квартиры или кадастровый номер.

Характеристики

  • Количество комнат 3
  • Этаж 9
  • Этажей всего 18
  • Ближайшее метро Ломоносовская
  • Площадь кухни 20.00 кв. м

Похожие предложения

Продать Квартиры вторичка Октябрьская набережная, 44

18 700 000 Р

Октябрьская набережная 44

Продать Квартиры вторичка Октябрьская набережная, 44

17 170 000 Р

Октябрьская набережная 44

Продать Квартиры вторичка Октябрьская набережная, 44

14 000 000 Р

Октябрьская набережная 44

Продать Квартиры вторичка улица Дыбенко, 4к1

18 000 000 Р

улица Дыбенко 4к1

Продать Квартиры вторичка Октябрьская набережная, 44

13 999 000 Р

Октябрьская набережная 44

Продать Квартиры вторичка Октябрьская набережная, 44

17 000 000 Р

Октябрьская набережная 44

Продать Квартиры вторичка улица Архивная, 7с1

14 900 000 Р

улица Архивная 7с1

Продать Квартиры вторичка улица Дыбенко  5 к1

18 600 000 Р

улица Дыбенко , д. 5 к1

Продать Квартиры вторичка Октябрьская наб  42

23 200 000 Р

Октябрьская наб , д. 42

Продать Квартиры вторичка Архивная улица  11 к3 с1

14 650 000 Р

Архивная улица , д. 11 к3 с1

Продать Квартиры вторичка Октябрьская наб  44

17 200 000 Р

Октябрьская наб , д. 44

Продать Квартиры вторичка Дыбенко ул  2 1

22 480 000 Р

Дыбенко ул , д. 2

Продать Квартиры вторичка улица Дыбенко  3 с1

22 700 000 Р

улица Дыбенко , д. 3 с1

Продать Квартиры вторичка улица Дыбенко  3 с1

15 200 000 Р

улица Дыбенко , д. 3 с1

Продать Квартиры вторичка улица Дыбенко  2

17 990 000 Р

улица Дыбенко , д. 2

Продать Квартиры вторичка Октябрьская наб  44

17 200 000 Р

Октябрьская наб , д. 44

Продать Квартиры вторичка Архивная улица  3

20 850 000 Р

Архивная улица , д. 3

Продать Квартиры вторичка улица Дыбенко  3 с1

21 205 000 Р

улица Дыбенко , д. 3 с1

Продать Квартиры вторичка улица Дыбенко

19 900 000 Р

улица Дыбенко

Продать Квартиры вторичка ул Архивная  7 1

14 900 000 Р

ул Архивная , д. 7

Restate.ru знает о доме Октябрьская наб, 42

  • Ввод в эксплуатацию: 1934
  • Кадастровый номер: 78:12:6333:3022
  • Тип здания: Производственный корпус, производственный корпус, бетоносмесительный узел, склад арматурного цеха, зарядная станция, заготовительное отделение, трансформаторная подстанция, трансформаторная подстанция
  • Материал стен: Крупнопанельные, Кирпичные
  • Площадь здания: 28208.6 кв. м
  • Кадастровая стоимость: 225 319 295 руб.

Ипотечный калькулятор

Стоимость недвижимости

Первоначальный взнос

Ставка

Срок

График средних цен по продаже трехкомнатных квартир в Невском районе

Тип недвижимости Средн. цена м2 Изменение с 18.03.2025 Разброс цен Дата
Квартиры в новостройке 287 060 руб. + 45 057 руб. 13 259 900 ... 34 214 000 руб. за объект 10.03.26
283 419 руб. + 41 416 руб. 13 135 800 ... 33 775 600 руб. за объект 24.02.26
282 238 руб. + 40 235 руб. 12 875 100 ... 33 497 200 руб. за объект 29.01.26
Квартиры вторичка 208 029 руб. + 21 646 руб. 7 950 000 ... 31 950 100 руб. за объект 10.03.26
206 463 руб. + 20 080 руб. 7 800 000 ... 30 400 000 руб. за объект 24.02.26
216 773 руб. + 30 390 руб. 7 900 000 ... 30 490 000 руб. за объект 10.02.26

Инфраструктура района

Детские сады

  • Начальная школа №689
  • Детский сад №133

Школы

  • Школа-интернат №24 для детей-сирот и детей
  • Специальная (коррекционная) школа-интернат №31 для обучающихся

Медицинские учреждения

  • Городская поликлиника №8
  • Городская поликлиника №8

Парки

  • Парк «Куракина Дача»
  • Сад у Ивановского карьера

Запишись на онлайн просмотр объекта

Указать критерии поиска