Мы используем "cookies". Продолжая просмотр, Вы принимаете Пользовательское соглашение и Политику обработки персональных данных.

257 711 объектов недвижимости Москвы

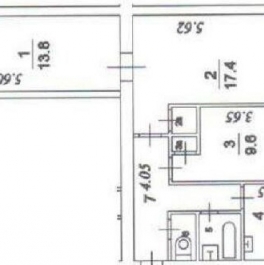
Продажа - 3-комн квартира, 57 кв. м. Коптевская улица д. 16 к1

16 100 000 Р

282 456 Р за м2 (в у.е.)

210 546 $ | 178 253 €
курсы валют
Бесплатно оцени свою квартиру
  • 57.00 м2

    Общая

  • 5.00 м2

    Кухня

  • 2 из 5

    Этаж

Москва, Северный административный округ, Коптево, Коптевская улица, д. 16 к1

на карте
  • МЦК Коптево (1.3 км)
Я собственник, квартира под ремонт, нужно выделить сына) Напротив хорошая школа, все близко, транспорт, парки, кинотеатр, магазины Статус: квартира,Количество комнат: 3,Общая площадь: 57 м²,Площадь кухни: 5.8 м²,Жилая площадь: 31 м²,Ремонт: требуется,Стоимость ремонта: отза 57 м²,Этаж: 2 из 5,Балкон или лоджия: балкон,Тип комнат: смежные,Высота потолков: 2.5 м,Санузел: раздельный,Окна: во двор, на улицу, на солнечную сторону,Мебель: хранение одежды,Способ продажи: свободная,Тип дома: кирпичный,Год постройки: 1964,Этажей в доме: 5,Пассажирский ... развернуть
Николай Петрович
Показать телефон

Эта квартира на вторичке
в ипотеку

от 77 222 ₽ в месяц

30 предложений от 16 банков

Рассчитать и получить
одобрение онлайн

Информация по объекту недвижимости, собственниках, обременениях и аресте, выписка ЕГРН.
Перед заказом уточните у продавца по телефону точный адрес до квартиры или кадастровый номер.

Характеристики

  • Количество комнат 3
  • Этаж 2
  • Этажей всего 5
  • Ближайшее метро Коптево
  • Площадь кухни 5.00 кв. м

Похожие предложения

Продать Квартиры вторичка Новопетровская улица, 14

17 500 000 Р

Новопетровская улица 14

Продать Квартиры вторичка Коптевская улица, 18

13 990 000 Р

Коптевская улица 18

Продать Квартиры вторичка Коптевская улица, 18АК3

19 000 000 Р

Коптевская улица 18АК3

Продать Квартиры вторичка Коптевская улица, 22

19 990 000 Р

Коптевская улица 22

Продать Квартиры вторичка Новопетровская улица, 3

18 750 000 Р

Новопетровская улица 3

Продать Квартиры вторичка Коптевская улица, 18Б

17 900 000 Р

Коптевская улица 18Б

Продать Квартиры вторичка Коптевская улица, 16К1

13 000 000 Р

Коптевская улица 16К1

Продать Квартиры вторичка Коптевская улица, 18к2

19 500 000 Р

Коптевская улица 18к2

Продать Квартиры вторичка Коптевский бульвар, 15

15 500 000 Р

Коптевский бульвар 15

Продать Квартиры вторичка Новопетровская улица, 1К4

16 900 000 Р

Новопетровская улица 1К4

Продать Квартиры вторичка Новопетровская улица, 3

19 200 000 Р

Новопетровская улица 3

Продать Квартиры вторичка Новопетровская улица, 3

19 500 000 Р

Новопетровская улица 3

Продать Квартиры вторичка улица Приорова  40 к2

19 500 000 Р

улица Приорова , д. 40 к2

Продать Квартиры вторичка Коптевская улица  16 к1

13 000 000 Р

Коптевская улица , д. 16 к1

Продать Квартиры вторичка ул Коптевская  16 1

15 700 000 Р

ул Коптевская , д. 16

Продать Квартиры вторичка ул Коптевская  16 1

15 995 000 Р

ул Коптевская , д. 16

Продать Квартиры вторичка Новомихалковский 4-й проезд  6

13 700 000 Р

Новомихалковский 4 й проезд , д. 6

Продать Квартиры вторичка Приорова улица, дом 2А

15 000 000 Р

Приорова улица дом 2А

Продать Квартиры вторичка улица Космонавта Волкова, 31К1

19 500 000 Р

улица Космонавта Волкова 31К1

Продать Квартиры вторичка Большая Академическая улица, 29Б

17 000 000 Р

Большая Академическая улица 29Б

Ипотечный калькулятор

Стоимость недвижимости

Первоначальный взнос

Ставка

Срок

Инфраструктура района

Детские сады

  • Интергация XXI век
  • Начальная школа №1252 им. Сервантеса

Школы

  • Гимназия №201 им. Героев Советского Союза Зои и Александра Космодемьянских
  • Гимназия №1576

Медицинские учреждения

  • Городская клиническая больница №52
  • Городская клиническая больница №52

Парки

  • Мемориальный парк
  • Парк Авиаторов

Запишись на онлайн просмотр объекта

Указать критерии поиска