Характеристики
- Количество комнат для продажи/аренды 1
- Количество комнат всего 1
- Этаж 26
- Этажей всего 32
- До метро 5 мин
- До метро, транспортом пешком
- Студия да
- Апартаменты нет
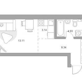
- Площадь жилая 13.11 кв. м
- Площадь комнат 13.11 кв. м
- Площадь кухни 3.14 кв. м
- Площадь санузла 4.93 кв. м
- Высота потолков 2.80 м
- квартал 3
- год 2027
- Отделка без отделки
Похожие предложения
Ипотечный калькулятор
График средних цен по продаже студий в Западном Дегунино
| Тип недвижимости | Средн. цена м2 | Изменение с 26.12.2024 | Разброс цен | Дата |
|---|---|---|---|---|
| Квартиры в новостройке | 534 676 руб. | + 145 364 руб. | 11 111 300 ... 19 761 100 руб. за объект | 09.12.25 |
| 544 635 руб. | + 155 323 руб. | 11 129 200 ... 18 972 000 руб. за объект | 25.11.25 | |
| 531 477 руб. | + 142 166 руб. | 11 111 300 ... 21 604 900 руб. за объект | 11.11.25 | |
| 512 305 руб. | + 122 994 руб. | 10 317 800 ... 22 368 500 руб. за объект | 28.10.25 | |
| 498 396 руб. | + 109 085 руб. | 9 798 320 ... 22 368 500 руб. за объект | 14.10.25 | |
| 492 206 руб. | + 102 895 руб. | 9 534 420 ... 22 368 500 руб. за объект | 30.09.25 |
Инфраструктура района
- Британская международная школа
- Прогимназия №1826
- Гимназия №1592
- Smart Line
- Детская инфекционная клиническая больница №6
- Детская поликлиника №76
- Главный ботанический сад им. Н.В. Цицина РАН
- Парк «Отрада»
Материалы по теме
Запишись на онлайн просмотр объекта








