Характеристики
- Количество комнат 2
- Тип дома монолитный
- Этаж 18
- Этажей всего 23
- Ближайшее метро Пятницкое Шоссе
- Студия нет
- Апартаменты нет
- Наличие балкона да
- Санузел раздельный с/у
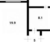
- Площадь жилая 30.00 кв. м
- Площадь кухни 13.00 кв. м
- Отделка под ключ (чистовая)
- Вид из окон во двор
- Ипотека да
Похожие предложения
Ипотечный калькулятор
График средних цен по продаже двухкомнатных квартир в Митино
| Тип недвижимости | Средн. цена м2 | Изменение с 04.02.2025 | Разброс цен | Дата |
|---|---|---|---|---|
| Квартиры в новостройке | 341 264 руб. | + 79 861 руб. | 15 872 200 ... 23 340 700 руб. за объект | 14.01.26 |
| 340 490 руб. | + 79 088 руб. | 13 941 300 ... 23 340 700 руб. за объект | 23.12.25 | |
| 325 014 руб. | + 63 612 руб. | 13 941 300 ... 23 153 300 руб. за объект | 09.12.25 | |
| Квартиры вторичка | 323 055 руб. | + 16 968 руб. | 11 200 000 ... 24 350 000 руб. за объект | 14.01.26 |
| 321 233 руб. | + 15 146 руб. | 11 250 000 ... 24 900 000 руб. за объект | 23.12.25 | |
| 313 056 руб. | + 6 969 руб. | 9 700 000 ... 24 300 000 руб. за объект | 09.12.25 |
Инфраструктура района
- Прогимназия №1782
- Белоснежка
- Гимназия №1544 с дошкольным отделением
- Гимназия №1538
- Тушинская городская детская больница
- Тушинская городская детская больница
- Митинский ландшафтный парк
- Новогорский лесопарк
Материалы по теме
Запишись на онлайн просмотр объекта









