Характеристики
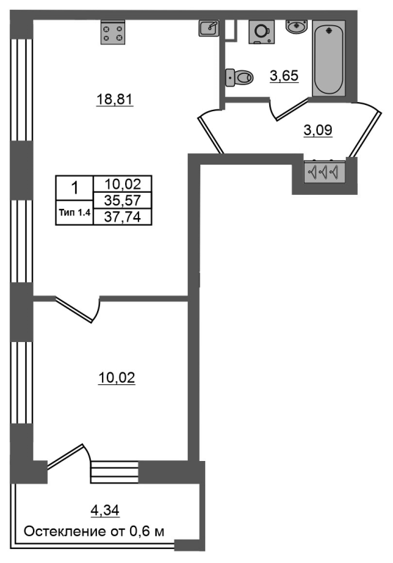
- Количество комнат для продажи/аренды 1
- Количество комнат всего 1
- Этаж 1
- Этажей всего 12
- До метро 10 мин
- До метро, транспортом на автобусе
- Наличие балкона да
- Апартаменты нет
- Площадь жилая 10.02 кв. м
- Площадь комнат 10.02 кв. м
- Площадь кухни 18.81 кв. м
- Площадь санузла 3.65 кв. м
- Высота потолков 2.92 м
- квартал 1
- год 2028
- Евро да
- Отделка под ключ (чистовая)
Похожие предложения
Ипотечный калькулятор
График средних цен по продаже однокомнатных квартир в Невском районе
| Тип недвижимости | Средн. цена м2 | Изменение с 18.02.2025 | Разброс цен | Дата |
|---|---|---|---|---|
| Квартиры в новостройке | 306 450 руб. | + 50 032 руб. | 5 566 400 ... 14 760 000 руб. за объект | 29.01.26 |
| 305 901 руб. | + 49 483 руб. | 5 537 230 ... 15 100 200 руб. за объект | 14.01.26 | |
| 297 768 руб. | + 41 350 руб. | 5 061 660 ... 14 760 000 руб. за объект | 23.12.25 | |
| Квартиры вторичка | 250 981 руб. | + 29 222 руб. | 5 300 000 ... 15 700 000 руб. за объект | 29.01.26 |
| 250 679 руб. | + 28 920 руб. | 5 250 000 ... 15 700 000 руб. за объект | 14.01.26 | |
| 250 181 руб. | + 28 422 руб. | 5 300 000 ... 16 000 000 руб. за объект | 23.12.25 |
Инфраструктура района
- Начальная школа №689
- Детский сад №1
- Школа-интернат №24 для детей-сирот и детей
- Специальная (коррекционная) школа-интернат №31 для обучающихся
- Городская больница №23
- Городская больница №23
- Заводской сад
- Сад «Спартак»
Материалы по теме
Запишись на онлайн просмотр объекта








