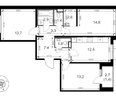
Характеристики
- Количество комнат для продажи/аренды 3
- Количество комнат всего 3
- Этаж 7
- Этажей всего 17
- Наличие балкона да
- Апартаменты нет
- Площадь жилая 42.50 кв. м
- Площадь комнат 16.00 кв. м
- Площадь кухни 14.70 кв. м
- Высота потолков 2.72 м
- квартал 1
- год 2028
- Отделка без отделки
Похожие предложения
Ипотечный калькулятор
График средних цен по продаже трехкомнатных квартир в Химках
| Тип недвижимости | Средн. цена м2 | Изменение с 26.12.2024 | Разброс цен | Дата |
|---|---|---|---|---|
| Квартиры в новостройке | 234 413 руб. | + 36 144 руб. | 16 873 000 ... 22 008 800 руб. за объект | 09.12.25 |
| 227 882 руб. | + 29 613 руб. | 16 731 800 ... 21 732 300 руб. за объект | 25.11.25 | |
| 239 168 руб. | + 40 900 руб. | 10 710 000 ... 23 500 000 руб. за объект | 11.11.25 | |
| Квартиры вторичка | 202 482 руб. | + 9 982 руб. | 7 700 000 ... 44 500 000 руб. за объект | 09.12.25 |
| 202 829 руб. | + 10 330 руб. | 7 990 000 ... 44 800 000 руб. за объект | 25.11.25 | |
| 201 922 руб. | + 9 423 руб. | 7 800 000 ... 46 500 000 руб. за объект | 11.11.25 |
Инфраструктура района
- Гимназия №12
- Гимназия №13
- Центральная городская больница
- Поликлиника №4
Материалы по теме
Запишись на онлайн просмотр объекта




