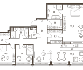
Характеристики
- Количество комнат для продажи/аренды 3
- Количество комнат всего 3
- Этаж 26
- Этажей всего 26
- До метро 16 мин
- До метро, транспортом пешком
- Апартаменты нет
- Высота потолков 3.00 м
- квартал 4
- год 2027
- Евро да
- Отделка без отделки
Похожие предложения
Ипотечный калькулятор
График средних цен по продаже трехкомнатных квартир в Даниловском районе
| Тип недвижимости | Средн. цена м2 | Изменение с 04.02.2025 | Разброс цен | Дата |
|---|---|---|---|---|
| Квартиры в новостройке | 672 810 руб. | + 104 999 руб. | 35 012 600 ... 200 667 000 руб. за объект | 14.01.26 |
| 654 523 руб. | + 86 711 руб. | 33 772 900 ... 190 559 000 руб. за объект | 23.12.25 | |
| 650 469 руб. | + 82 658 руб. | 32 633 500 ... 191 696 000 руб. за объект | 09.12.25 | |
| Квартиры вторичка | 572 454 руб. | + 123 071 руб. | 21 000 000 ... 111 390 000 руб. за объект | 14.01.26 |
| 573 996 руб. | + 124 613 руб. | 21 000 000 ... 110 640 000 руб. за объект | 23.12.25 | |
| 575 497 руб. | + 126 114 руб. | 21 699 000 ... 111 960 000 руб. за объект | 09.12.25 |
Инфраструктура района
- Средняя общеобразовательная школа №494 с дошкольным отделением
- Средняя общеобразовательная школа №494 с дошкольным отделением
- Гимназия №1272 с дошкольным отделением
- Гимназия №1272 с дошкольным отделением
- Городская клиническая больница №53
- Городская клиническая больница №53
- Парк искусств
- Таганский
Материалы по теме
Запишись на онлайн просмотр объекта











