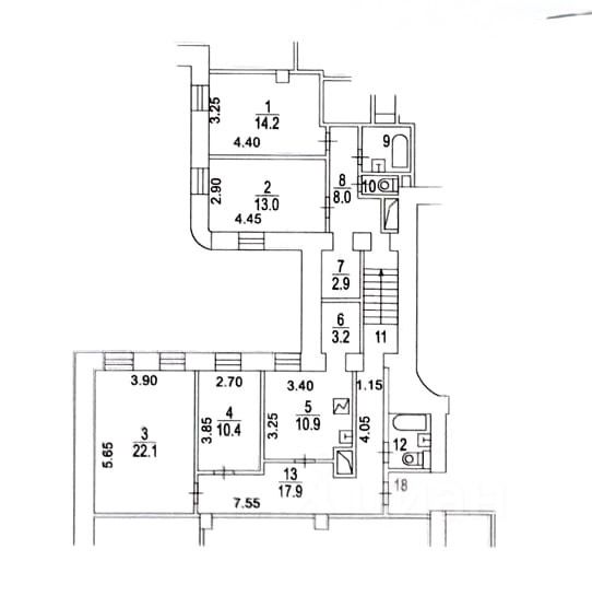
Характеристики
- Количество комнат 4
- Тип дома кирпичный
- Этаж 4
- Этажей всего 4
- Ближайшее метро Тверская
- Студия нет
- Апартаменты нет
- Санузел 2 санузла с/у
- Площадь жилая 59.20 кв. м
- Площадь кухни 11.00 кв. м
- Отделка под ключ (чистовая)
- Вид из окон во двор
- Ипотека да
Похожие предложения
График средних цен по продаже многокомнатных квартир в Тверском районе
| Тип недвижимости | Средн. цена м2 | Изменение с 05.12.2024 | Разброс цен | Дата |
|---|---|---|---|---|
| Квартиры в новостройке | 4 431 230 руб. | + 785 887 руб. | 593 500 000 ... 3 003 000 000 руб. за объект | 25.11.25 |
| 4 568 986 руб. | + 923 643 руб. | 637 700 000 ... 3 003 000 000 руб. за объект | 11.11.25 | |
| 4 755 415 руб. | + 1 110 072 руб. | 637 700 000 ... 3 003 000 000 руб. за объект | 28.10.25 | |
| Квартиры вторичка | 1 062 095 руб. | + 110 776 руб. | 45 700 000 ... 1 045 020 000 руб. за объект | 25.11.25 |
| 1 064 016 руб. | + 112 697 руб. | 41 500 000 ... 1 045 020 000 руб. за объект | 11.11.25 | |
| 1 070 091 руб. | + 118 772 руб. | 40 000 000 ... 949 900 000 руб. за объект | 28.10.25 |
Инфраструктура района
- Прогимназия №1755
- Мир искусств
- Гимназия №1529
- Больница с поликлиникой при Управлении делами Президента РФ
- Детская клиническая больница №13 им. Н.Ф. Филатова
- Парк искусств
- Сквер Девичьего поля
Материалы по теме
Запишись на онлайн просмотр объекта









