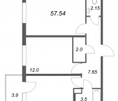
Характеристики
- Количество комнат для продажи/аренды 2
- Количество комнат всего 2
- Этаж 1
- Этажей всего 4
- До метро 20 мин
- До метро, транспортом на автобусе
- Наличие балкона да
- Апартаменты нет
- Площадь жилая 26.22 кв. м
- Площадь комнат 14.01 кв. м
- Площадь кухни 18.15 кв. м
- Высота потолков 2.77 м
- квартал 4
- год 2027
- Евро да
- Отделка под ключ (чистовая)
Похожие предложения
Ипотечный калькулятор
График средних цен по продаже двухкомнатных квартир в Петродворцовом районе
| Тип недвижимости | Средн. цена м2 | Изменение с 04.03.2025 | Разброс цен | Дата |
|---|---|---|---|---|
| Квартиры в новостройке | 261 056 руб. | + 36 063 руб. | 13 234 500 ... 20 500 000 руб. за объект | 29.01.26 |
| 260 698 руб. | + 35 705 руб. | 13 159 400 ... 20 500 000 руб. за объект | 14.01.26 | |
| 259 981 руб. | + 34 988 руб. | 12 394 200 ... 21 691 400 руб. за объект | 23.12.25 | |
| Квартиры вторичка | 185 533 руб. | + 21 236 руб. | 5 350 000 ... 24 117 600 руб. за объект | 10.02.26 |
| 163 089 руб. | - 1 208 руб. | 4 850 000 ... 15 450 000 руб. за объект | 29.01.26 | |
| 161 524 руб. | - 2 773 руб. | 4 900 000 ... 15 663 000 руб. за объект | 14.01.26 |
Инфраструктура района
- Детский сад №6
- Детский сад №2
- Средняя общеобразовательная школа №414
- Михайловская
- Городская поликлиника №91
- Сад Института экспериментальной медицины
- Шунгеровский лесопарк
Материалы по теме
Запишись на онлайн просмотр объекта





