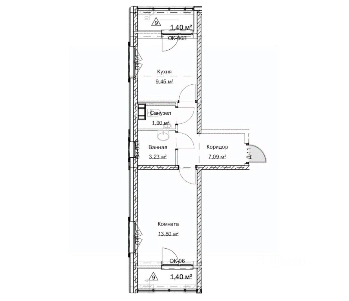
Характеристики
- Количество комнат 1
- Тип дома кирпично-монолитный
- Этаж 2
- Этажей всего 9
- Ближайшее метро Елизаровская
- Студия нет
- Апартаменты нет
- Наличие балкона да
- Санузел раздельный с/у
- Площадь жилая 13.80 кв. м
- Площадь кухни 9.50 кв. м
- Отделка без отделки
- Ипотека да
Похожие предложения
Ипотечный калькулятор
График средних цен по продаже однокомнатных квартир в Невском районе
| Тип недвижимости | Средн. цена м2 | Изменение с 05.12.2024 | Разброс цен | Дата |
|---|---|---|---|---|
| Квартиры в новостройке | 287 444 руб. | + 38 187 руб. | 4 962 500 ... 14 234 300 руб. за объект | 11.11.25 |
| 285 899 руб. | + 36 642 руб. | 5 031 590 ... 14 091 500 руб. за объект | 28.10.25 | |
| 285 212 руб. | + 35 955 руб. | 5 025 350 ... 14 097 400 руб. за объект | 14.10.25 | |
| Квартиры вторичка | 242 794 руб. | + 28 640 руб. | 5 200 000 ... 16 300 000 руб. за объект | 11.11.25 |
| 241 771 руб. | + 27 617 руб. | 5 200 000 ... 16 328 900 руб. за объект | 28.10.25 | |
| 242 104 руб. | + 27 951 руб. | 5 200 000 ... 16 000 000 руб. за объект | 14.10.25 |
Инфраструктура района
- Детский сад №49
- Детский сад №75
- Школа-интернат №37 VIII вида для обучающихся
- Специальная (коррекционная) школа-интернат №31 для обучающихся
- Городская больница №23
- Городская больница №23
- Яблоневый сад
- Плодовый сад
Материалы по теме
Запишись на онлайн просмотр объекта









