Характеристики
- Количество комнат для продажи/аренды 1
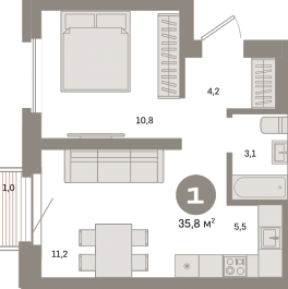
- Количество комнат всего 1
- Этаж 20
- Этажей всего 31
- До метро 20 мин
- До метро, транспортом пешком
- Наличие балкона да
- Апартаменты нет
- Площадь жилая 10.80 кв. м
- Площадь комнат 10.80 кв. м
- Площадь кухни 16.70 кв. м
- Площадь санузла 3.10 кв. м
- Высота потолков 3.00 м
- квартал 4
- год 2026
- Евро да
- Отделка предчистовая
Похожие предложения
Ипотечный калькулятор
Инфраструктура района
- Гимназия №1505
- Lingua House
- Городская клиническая больница №36
- Городская клиническая больница №36
- Измайлово
- Черкизовский парк
Материалы по теме
Запишись на онлайн просмотр объекта






