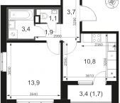
Характеристики
- Количество комнат для продажи/аренды 1
- Количество комнат всего 1
- Этаж 5
- Этажей всего 17
- Наличие балкона да
- Апартаменты нет
- Площадь жилая 13.60 кв. м
- Площадь комнат 13.60 кв. м
- Площадь кухни 11.00 кв. м
- Площадь санузла 2.80 кв. м
- Высота потолков 2.84 м
- квартал 4
- год 2027
- Отделка предчистовая
Похожие предложения
Ипотечный калькулятор
График средних цен по продаже однокомнатных квартир в Химках
| Тип недвижимости | Средн. цена м2 | Изменение с 04.02.2025 | Разброс цен | Дата |
|---|---|---|---|---|
| Квартиры в новостройке | 288 640 руб. | + 43 231 руб. | 6 127 440 ... 15 775 500 руб. за объект | 14.01.26 |
| 293 648 руб. | + 48 239 руб. | 6 308 310 ... 15 768 600 руб. за объект | 23.12.25 | |
| 287 334 руб. | + 41 925 руб. | 6 230 440 ... 16 032 000 руб. за объект | 09.12.25 | |
| Квартиры вторичка | 237 423 руб. | + 19 680 руб. | 5 900 000 ... 15 700 000 руб. за объект | 14.01.26 |
| 234 216 руб. | + 16 474 руб. | 5 800 000 ... 16 500 000 руб. за объект | 23.12.25 | |
| 230 808 руб. | + 13 065 руб. | 5 650 000 ... 16 500 000 руб. за объект | 09.12.25 |
Инфраструктура района
- Гимназия №12
- Гимназия №13
- Центральная городская больница
- Поликлиника №4
Материалы по теме
Запишись на онлайн просмотр объекта




