Характеристики
- Этаж 7
- Этажей всего 7
- Ближайшее метро Пенягино
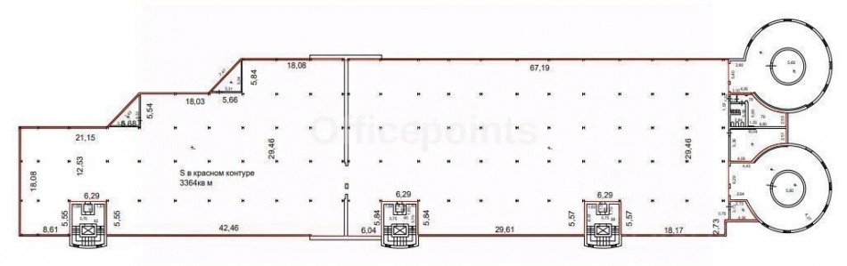
- Площадь комнат 3350.00 кв. м
Похожие предложения
График средних цен по аренде офисов в Городском округе Красногорск
| Тип недвижимости | Средн. цена м2 | Изменение с 16.01.2025 | Разброс цен | Дата |
|---|---|---|---|---|
| Офисы | 283 руб. | - 20 руб. | 14 167 ... 241 562 руб. за объект | 11.11.25 |
| 341 руб. | + 38 руб. | 13 865 ... 173 444 руб. за объект | 28.10.25 | |
| 315 руб. | + 12 руб. | 13 340 ... 169 167 руб. за объект | 14.10.25 | |
| 354 руб. | + 51 руб. | 13 865 ... 169 167 руб. за объект | 30.09.25 | |
| 389 руб. | + 87 руб. | 12 986 ... 134 100 руб. за объект | 16.09.25 | |
| 397 руб. | + 95 руб. | 12 500 ... 129 172 руб. за объект | 02.09.25 |
Инфраструктура района
- Созвездие
- Гимназия №7
- Гимназия №1544 с дошкольным отделением
- Специализированная психоневрологическая клиническая больница №8 им. З.П. Соловьева
- Красногорская городская больница №2
- Митинский ландшафтный парк
Материалы по теме
Запишись на онлайн просмотр объекта



