Характеристики
- Тип дома кирпично-монолитный
- Этаж 25
- Этажей всего 28
- Ближайшее метро Парнас
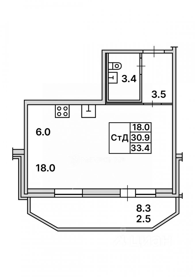
- Студия да
- Апартаменты нет
- Наличие балкона да
- Санузел совмещенный с/у
- Площадь жилая 18.00 кв. м
- Площадь кухни 6.00 кв. м
- Отделка без отделки
- Вид из окон во двор
- Ипотека да
Похожие предложения
Ипотечный калькулятор
График средних цен по продаже студий в Выборгском районе
| Тип недвижимости | Средн. цена м2 | Изменение с 21.11.2024 | Разброс цен | Дата |
|---|---|---|---|---|
| Квартиры в новостройке | 252 519 руб. | + 5 314 руб. | 5 720 000 ... 9 905 000 руб. за объект | 11.11.25 |
| 251 615 руб. | + 4 411 руб. | 5 660 000 ... 9 826 380 руб. за объект | 28.10.25 | |
| 242 783 руб. | - 4 422 руб. | 5 059 340 ... 9 826 380 руб. за объект | 14.10.25 | |
| Квартиры вторичка | 275 674 руб. | + 52 686 руб. | 4 100 000 ... 11 977 200 руб. за объект | 11.11.25 |
| 279 595 руб. | + 56 607 руб. | 4 000 000 ... 11 770 100 руб. за объект | 28.10.25 | |
| 282 344 руб. | + 59 356 руб. | 3 950 000 ... 12 150 000 руб. за объект | 14.10.25 |
Инфраструктура района
- Прогимназия №130
- Детский сад №118
- Средняя общеобразовательная школа №115
- Средняя общеобразовательная школа №135 с углубленным изучением английского языка
- Областная детская клиническая больница
- Детская городская поликлиника №71
- Сад Ивана Фомина
- Парк Апостолов Петра и Павла
Материалы по теме
Запишись на онлайн просмотр объекта










