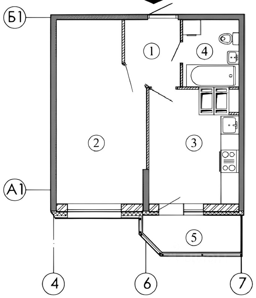
Характеристики
- Количество комнат 1
- Этаж 21
- Этажей всего 22
- Ближайшее метро Ломоносовская
- Студия нет
- Апартаменты нет
- Наличие балкона да
- Санузел совмещенный с/у
- Площадь жилая 15.00 кв. м
- Площадь кухни 8.00 кв. м
- Отделка под ключ (чистовая)
- Вид из окон на улицу
- Ипотека нет
Похожие предложения
Ипотечный калькулятор
График средних цен по аренде однокомнатных квартир в Невском районе
За объект
| Тип недвижимости | Средн. цена м2 | Изменение с 21.11.2024 | Разброс цен | Дата |
|---|---|---|---|---|
| Квартиры вторичка | 41 267 руб. | + 1 887 руб. | 25 000 ... 68 000 руб. за объект | 11.11.25 |
| 41 804 руб. | + 2 424 руб. | 25 000 ... 70 000 руб. за объект | 28.10.25 | |
| 42 027 руб. | + 2 646 руб. | 27 000 ... 65 000 руб. за объект | 14.10.25 | |
| 41 670 руб. | + 2 290 руб. | 27 000 ... 60 000 руб. за объект | 30.09.25 | |
| 42 778 руб. | + 3 398 руб. | 28 000 ... 65 000 руб. за объект | 16.09.25 | |
| 43 687 руб. | + 4 307 руб. | 27 000 ... 70 000 руб. за объект | 02.09.25 |
Инфраструктура района
- Детский сад №12
- Детский сад №126
- Средняя общеобразовательная школа №574
- Средняя общеобразовательная школа №571 с углубленным изучением английского языка
- Городская поликлиника №77
- Городская поликлиника №77
- Брестский парк
- Парк имени С. А. Есенина
Материалы по теме
Запишись на онлайн просмотр объекта










