Характеристики
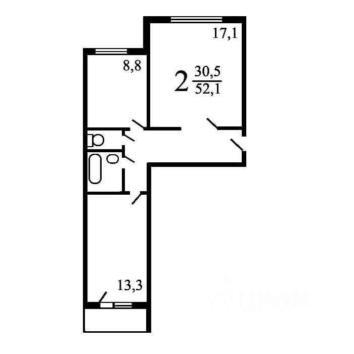
- Количество комнат 2
- Тип дома панельный
- Этаж 3
- Этажей всего 14
- Ближайшее метро Кантемировская
- Студия нет
- Апартаменты нет
- Наличие балкона да
- Санузел раздельный с/у
- Площадь жилая 31.00 кв. м
- Площадь кухни 9.00 кв. м
- Отделка под ключ (чистовая)
- Вид из окон во двор
- Ипотека да
Похожие предложения
Ипотечный калькулятор
График средних цен по продаже двухкомнатных квартир в Москворечье-Сабурово
| Тип недвижимости | Средн. цена м2 | Изменение с 05.12.2024 | Разброс цен | Дата |
|---|---|---|---|---|
| Квартиры вторичка | 321 262 руб. | + 36 173 руб. | 10 700 000 ... 29 000 000 руб. за объект | 11.11.25 |
| 314 790 руб. | + 29 701 руб. | 11 000 000 ... 30 700 000 руб. за объект | 28.10.25 | |
| 317 766 руб. | + 32 678 руб. | 11 000 000 ... 30 700 000 руб. за объект | 14.10.25 | |
| 320 743 руб. | + 35 655 руб. | 11 000 000 ... 29 500 000 руб. за объект | 30.09.25 | |
| 328 945 руб. | + 43 857 руб. | 12 490 000 ... 29 500 000 руб. за объект | 16.09.25 | |
| 335 418 руб. | + 50 329 руб. | 11 800 000 ... 29 500 000 руб. за объект | 02.09.25 |
Инфраструктура района
- Эллада
- Гимназия №1579
- Городская клиническая больница №12
- Центральная детская клиническая больница Федерального медико-биологического агентства
- Царицыно
- Аршиновский парк
Материалы по теме
Запишись на онлайн просмотр объекта









