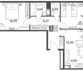
Характеристики
- Количество комнат для продажи/аренды 3
- Количество комнат всего 3
- Этаж 10
- Этажей всего 15
- Наличие балкона да
- Апартаменты нет
- Площадь жилая 42.20 кв. м
- Площадь комнат 15.62 кв. м
- Площадь кухни 21.07 кв. м
- Высота потолков 2.72 м
- квартал 3
- год 2026
- Евро да
- Отделка без отделки
Похожие предложения
Ипотечный калькулятор
График средних цен по продаже трехкомнатных квартир в Пушкинском городском округе
| Тип недвижимости | Средн. цена м2 | Изменение с 04.03.2025 | Разброс цен | Дата |
|---|---|---|---|---|
| Квартиры в новостройке | 218 476 руб. | + 66 815 руб. | 9 549 220 ... 20 594 100 руб. за объект | 24.02.26 |
| 195 715 руб. | + 44 053 руб. | 13 502 200 ... 15 788 200 руб. за объект | 10.02.26 | |
| 210 923 руб. | + 59 262 руб. | 9 414 540 ... 20 562 700 руб. за объект | 29.01.26 | |
| Квартиры вторичка | 142 969 руб. | + 839 руб. | 5 500 000 ... 21 990 000 руб. за объект | 24.02.26 |
| 162 690 руб. | + 20 560 руб. | 5 500 000 ... 21 990 000 руб. за объект | 10.02.26 | |
| 143 560 руб. | + 1 431 руб. | 5 480 000 ... 19 700 000 руб. за объект | 29.01.26 |
Инфраструктура района
- Начальная школа-детский сад №63
- Гимназия №10
- TDS Language School
- Детская больница
- Центральная городская больница
Материалы по теме
Запишись на онлайн просмотр объекта





